Fitty Wun House

Project Details

Project Name
Fitty Wun House
Project Types
Single Family
Project Status
Built
Size
4,188 ft²

Project Description

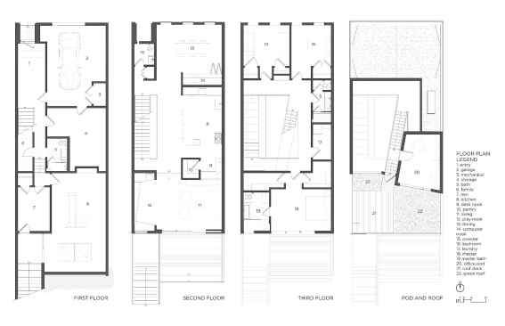
The client’s work hard, play hard lifestyle fueled Feldman Architecture’s modern update of a 1915 San Francisco townhome that reflects the spirited nature of its inhabitants. The renovation repurposes the home’s existing bones, adding an elegant cedar- and glass-paneled façade that offers little indication of the frolicsome sanctuary within.

At the heart of the recrafted structure is a jutting, steel-framed staircase that connects all three levels around a central atrium. A place for cooking, eating, working, and playing, the large, light-filled space connects the adjacent spaces, and keeps the clients in easy ear-shot of their young children at all times.

In the kitchen, a handmade swing carved from reclaimed oak by Dzierlenga F+U is suspended from the underside of the Escher-esque staircase. The space opens up toward the ceiling, welcoming natural light from the upper story skylights and clerestory windows. Upstairs, a detached study and green roof provide an occasional oasis from the excitement below. —Leah Demirjian

Upcoming Events

  • Build-to-Rent Conference

    JW Marriott Phoenix Desert Ridge

    Register Now
  • Builder 100

    Dana Point, CA

    Register Now
  • Protecto Wall VP Standard Installation Video

    Webinar

    Register for Free
All Events