gewerbehof missindorf

Project Details

Project Name
gewerbehof missindorf
Location
Goldschlagstraße 172ViennaAUSTRIA1140
Project Types
Shared By
HOLODECK architects
Project Status
Built
Year Completed
2010
Certifications & Designations
LEED Platinum

Project Description

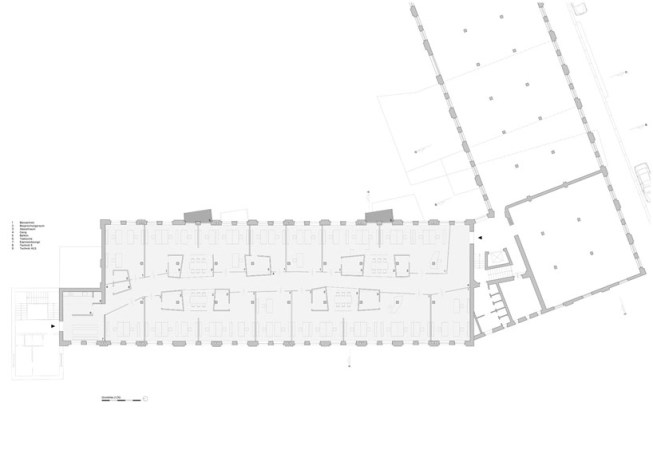
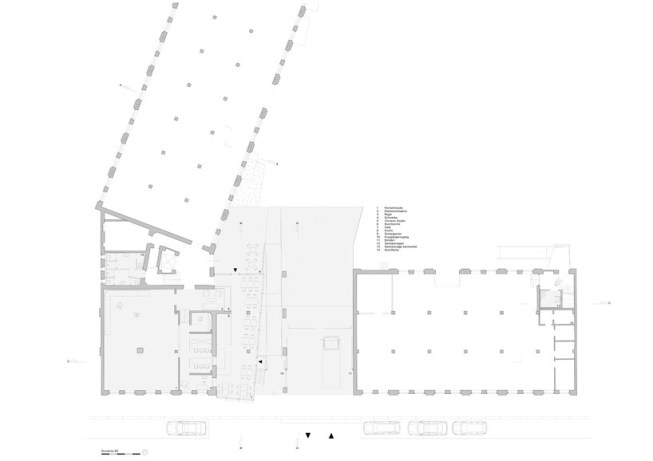
The business park’s public spaces create a three-dimensional development of divergent exterior areas. The existing structures form the backdrop for the design of the new buildings, which preserve and continue the multifunctional character of the existing industrial buildings.

INVITED COMPETITION 1ST PRIZE

Upcoming Events

  • Protecto Wall VP Standard Installation Video

    Webinar

    Register for Free
  • How Right-Sized Plumbing Saves Money, Saves Water, and Protects Wellness

    Webinar

    Register for Free
  • Building Careers from the Ground Up: The IUPAT Floor Covering Apprenticeship and Training Program

    Webinar

    Register for Free
All Events