Grays Inn Creek House

Project Details

Project Name
Grays Inn Creek House
Location
Rock HallMD
Project Types
Shared By
dmadsen
Project Status
Built
Size
3,250 ft²

Project Description

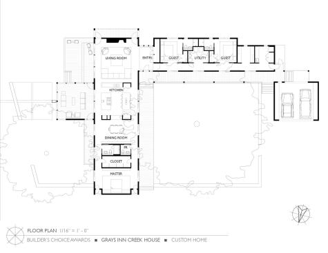
This property abuts Grays Inn Creek, a deep-water tributary of the Chester River that feeds directly into the Chesapeake Bay. The site was once a shipping berth for local agriculture bounty. History provided access, solid footing, and a navigable water’s edge; allowing the owner to assemble a team and build a new home within the stringent rules necessitated by the presence of a rich, wetlands setting.

The house is organized around a relaxed courtyard with a 100-year old willow oak tree as its centerpiece. The main wing’s one-story, simple rectangle anchors the courtyard and provides views to the water. An attached screen porch with inverted peak roof, sits proud on the side of the main wing, and collects and spouts rainwater to a low landscape basin, directing the way to the water and boat-dock beyond. The guest wing, outbuildings and a new, low, rustic, concrete, “vestigial wall” all reinforce the courtyard. The wall references the possible lore of a narrative of found structures past.

The house is completely wrapped in natural cedar with painted tin roofing. The deep, geothermal wells make easy work of tempering the super-insulated structure as it hovers lightly above the flood plain, minimizing critical area impact.

Upcoming Events

  • Happier Homebuyers, Higher Profits: Specifying Fireplaces for Today’s Homes

    Webinar

    Register for Free
  • Sales is a Sport: These Tactics Are the Winning Play

    Webinar

    Register for Free
  • Dispelling Myths and Maximizing Value: Unlock the Potential of Open Web Floor Trusses

    Webinar

    Register for Free
All Events