Green House

Project Details

Project Name
Green House
Location
BridgehamptonNY
Project Types
Single Family
Project Status
Built
Year Completed
2013
Size
10,000 ft²

Project Description

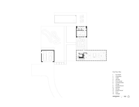
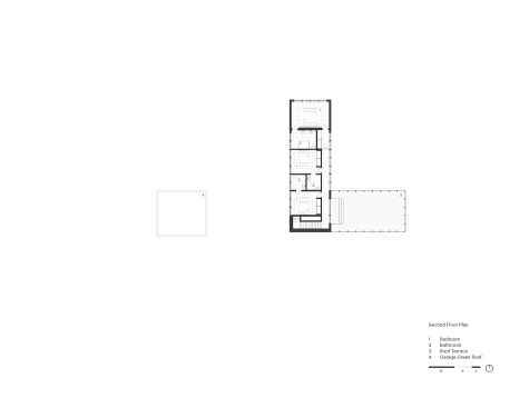
Green House is a prototypical residence – the first of five houses designed for a community dedicated to contemporary design. Composed of two interlocking rectangular forms, the house is sited in a clearing in the woods and balances an interplay between public and private spaces. On the first floor are social spaces (kitchen, dining, and living room) that are open to each other and linked to the exterior, and private rooms are located on the more enclosed second floor (with a roof terrace open to views of the site beyond). Linking the two volumes is a folded, delicately crafted, cantilevered wood staircase floating behind glass. The roof terrace above is accessed from the bedroom wing. The house was intended to be both luxurious and formally sophisticated, yet relatively small simple, super-efficient, nearly maintenance free, and economical to build. Rainwater is collected for use in the garden, and structural steel and the rainscreen fiber cement panels are composed of recycled material. As a reference to the ecologically-conscious materials used in the project, the small size and low-impact footprint, and the surrounding heavily wooded site, Green House is literally and figuratively green. Fiber cement panels tinged with a subtle green wrap the house in modernist efficiency, shrouding more private program and revealing public program below, where full-height high-efficiency glazing reveals the lower form.

Upcoming Events

  • Happier Homebuyers, Higher Profits: Specifying Fireplaces for Today’s Homes

    Webinar

    Register for Free
  • Sales is a Sport: These Tactics Are the Winning Play

    Webinar

    Register for Free
  • Dispelling Myths and Maximizing Value: Unlock the Potential of Open Web Floor Trusses

    Webinar

    Register for Free
All Events