Greenleaf Residence

Project Details

Project Name
Greenleaf Residence
Location
ChicagoIL
Project Types
Single Family
Project Scope
Adaptive Reuse
Shared By
VRadutny
Project Status
Concept Proposal
Year Completed
2016
Style
Modern
Size
5,000 ft²
Team
Principal: Vladimir Radutny
Associate: Fanny Hothan

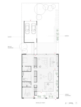
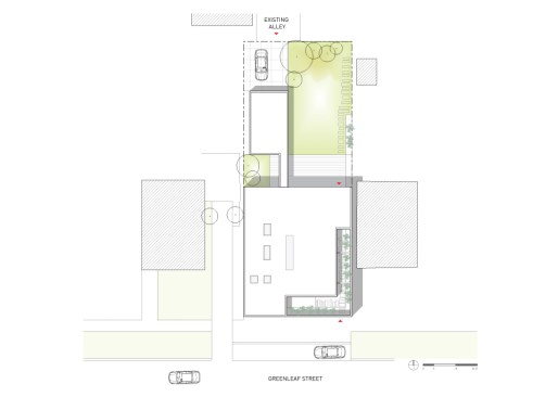
Project Description

Conversion of an existing commercial building into a single-family residence with new landscaping.

Upcoming Events

  • Happier Homebuyers, Higher Profits: Specifying Fireplaces for Today’s Homes

    Webinar

    Register for Free
  • Sales is a Sport: These Tactics Are the Winning Play

    Webinar

    Register for Free
  • Dispelling Myths and Maximizing Value: Unlock the Potential of Open Web Floor Trusses

    Webinar

    Register for Free
All Events