Grodzki Residence

Project Details

Project Name
Grodzki Residence
Location
Silver SpringMD
Project Types
Single Family
Project Status
Built
Year Completed
2016
Size
5,500 ft²

Project Description

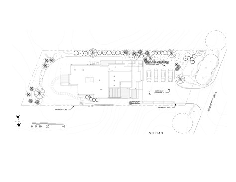
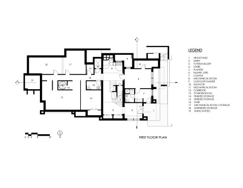
The Grodzki residence was completed in the Spring of 2016. The residence is located close to the downtown area but in a secluded, wooded street, overlooking a creek and park. This long-term project combined two objectives: 1) design a contemporary home for the owner architect that would reflect his modern design philosophy and allow him and his wife to age in place 2) compliment his father-in-law’s 100 year-old manor house, right next door, that shares a garden and plantings. The scale of the house needed to present a small exterior profile so as not to overwhelm the setting. The house sits on a challenging, narrow sloping site, requiring horizontal and vertical balancing definitions. The design elements allow for maximum interaction of light and views. At the center of the house is a dramatic entry with a 35 foot high atrium that integrates and separates both public and private spaces. As a result of this play of spaces, even though the house has large volumes it’s clever division of space makes it feel intimate and residential. The interior and exterior design uses a repeating palette of color and materials that combines a traditional stone veneer base and a contemporary Efis finish, allowing for the use of color and texture that make the house visually arresting. Photos are attached in low res for application purposes, but have high resolution copies should they be needed for any review or publication.

Upcoming Events

  • Protecto Wall VP Standard Installation Video

    Webinar

    Register for Free
  • How Right-Sized Plumbing Saves Money, Saves Water, and Protects Wellness

    Webinar

    Register for Free
  • Building Careers from the Ground Up: The IUPAT Floor Covering Apprenticeship and Training Program

    Webinar

    Register for Free
All Events