Hammock House

Project Details

Project Name
Hammock House
Location
ColumbusNC
Architect
Samsel Architects
Project Types
Single Family
Project Scope
New Construction
Shared By
Ayda Ayoubi
Project Status
Built
Year Completed
2016

Project Description

FROM THE ARCHITECTS:

The Hammock House brings a distinctly modern element to a rural farm in the foothills of North Carolina. Our clients longed for simple farm life, so they decided to retire a little early and purchase a 40-acre farm with pastures, mountain views and land dotted with towering old growth oak trees.

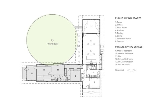
As with all of our projects, the existing landscape and our clients’ vision directed our design concept. Our clients wanted a simple, modern house that could open up to the land. The result is an L-shaped house that orients public and private spaces around the largest of the oak trees and creates a protected and intimate outdoor terrace. A wall of operable doors and a mosaic of windows connect the living spaces to the surrounding landscape and bring daylight in on 3 sides.

The programming and space planning required unique design solutions based around our client’s close-knit family. The wife’s parents are also full-time residents in the home, so designing the right balance of shared and private spaces for four adults was key to a high functioning design. The husband’s family comes to visit from South America for extended stays bi-annually, so the house was designed to structurally and spatially accommodate a series of hanging hammocks. This allows the whole family to stay together on the land during a visit. These hammocks can be hung up on both porches, on the terrace and in the living room, and can easily be taken down when not needed.

The main entry for the house is at the low point of the roof and the ceiling height and roof slowly rise as you move through the public spaces of the house. A glass window wall and screen porch create a dramatic termination of the roof line as the living spaces open up to a view of the magnificent oak, and the adjacent forest and pasture. The abundant windows and neutral tones make the interior spacious and bright.

Upcoming Events

  • Protecto Wall VP Standard Installation Video

    Webinar

    Register for Free
  • How Right-Sized Plumbing Saves Money, Saves Water, and Protects Wellness

    Webinar

    Register for Free
  • Building Careers from the Ground Up: The IUPAT Floor Covering Apprenticeship and Training Program

    Webinar

    Register for Free
All Events