Harvey House

Project Details

Project Name
Harvey House
Location
Palm SpringsCA
Project Types
Single Family
Shared By
katie_gerfen
Project Status
Built
Year Completed
2017
Size
5,500 ft²

Project Description

2018 Residential Architect Design Awards / Restoration/Preservation / Honorable Mention

“It’s really clean California Modernism, and they haven’t competed with the original architecture at all—they’ve let the structure and spaces be the project.” —Dirk Denison

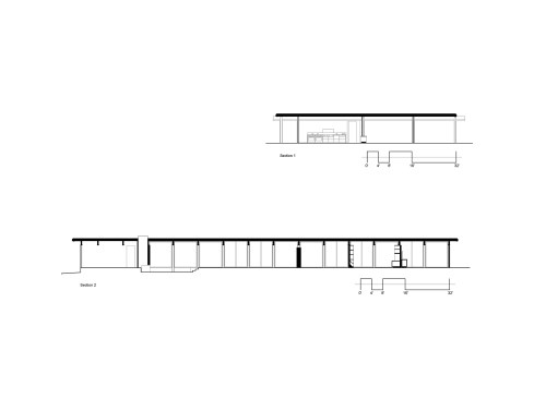
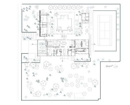
The Harvey House was built in 1969 for actor Laurence Harvey by Southern California modernists Buff & Hensman. Los Angeles–based Marmol Radziner was called upon to restore and update the classic 5,500-square-foot midcentury desert house in Palm Springs, Calif., with a brief to add modern conveniences and eliminate formal and visual barriers from the original design.

The house is configured on three sides around an exterior courtyard, with extensive outdoor spaces—it comprises a great room, kitchen, master suite, guest suite, massage room, sauna, outdoor bar area, and pool, with a tennis court adjacent to the complex. Buff & Henson were known for their skillful deployment of exposed post-and-beam construction and the Harvey House was no exception; Marmol Radziner chose to enhance the outline of the frame with new brown-black trim that contrasts with the original white.

Through thoughtful and strategic planning, the architects opened the space, increased glazing, and added skylights to maximize natural light and amplify many of the original designer’s formal and spatial concepts. For example, a wall between the original dining room and den was removed to create a new great room along the eastern edge of the courtyard, and the architects fabricated a new metal screen to provide formal separation between the kitchen and dining room, while maintaining a clear visual connection between the two spaces. The architects installed new gleaming white terrazzo flooring that extends throughout interior and exterior space, providing a virtually seamless transition that reflects how the new owners use the home as a weekend destination and winter getaway.

See the full list of winners of the 2018 Residential Architect Design Awards.

Project Credits
Project: Harvey House, Palm Springs, Calif.
Client: Rea Laccone
Architect: Marmol Radziner, Los Angeles . Leo Marmol, FAIA, Ron Radziner, FAIA, Robert Tsurimoto Kirsten, AIA (associate, studio director)
Interior Designer: Marmol Radziner
Structural Engineer: Risha Engineering Group
General Contractor/Construction Manager/Landscape Architect: Marmol Radziner
Land Surveyor: Feiro Engineering, Inc.
Design/Build Installer: ElectricMan Contractor
Low Voltage Design: AVIR
Size: 5,500 square feet
Cost: Withheld

Materials and Sources
Appliances: Sub-Zero (refrigerator); Wolf (oven); Dacor (microwave); Viking (trash compactor); Fisher Pykel (dishwasher); Aurora (barbecue)
Bathroom Fixtures: Hansgrohe, Grohe, California Faucets, Speakman
Carpet: Stark Carpet
Cabinets: Marmol Radziner
Ceilings: Marmol Radziner
Concrete: L.M. Scofield Co.
Countertops: OKITE
Flooring: Hermosa Terrazzo
Kitchen Fixtures: Dornbracht, Blanco
Paints/Finishes: Surfaces by David Bonk
Windows/Doors: Industrial Skylights, Fleetwood

FROM THE ARCHITECTS:

The Harvey House, originally built by Buff & Hensman in 1969 for actor Laurence Harvey, was purchased by Vince cofounder Rea Laccone, for whom MR restored another home in Beverly Hills. MR's primary goal for the restoration of Harvey House was to elevate and refresh the overall quality of the home. Marmol Radziner did the architecture, interiors, and landscape. MR's interiors department worked very closely with Rea to select furnishings and art that simultaneously suit the home and reflect Rea’s refined architectural sensibilities.

Upcoming Events

  • Protecto Wall VP Standard Installation Video

    Webinar

    Register for Free
  • How Right-Sized Plumbing Saves Money, Saves Water, and Protects Wellness

    Webinar

    Register for Free
  • Building Careers from the Ground Up: The IUPAT Floor Covering Apprenticeship and Training Program

    Webinar

    Register for Free
All Events