HEADQUARTER POST AG

Project Details

Project Name
HEADQUARTER POST AG
Location
ViennaAUSTRIA1030
Project Scope
New Construction
Shared By
HOLODECK architects
Project Status
Concept Proposal
Year Completed
2013

Project Description

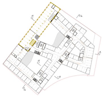
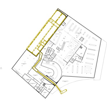
The new headquarters of the Austrian Post AG is embedded in the urban context by inclusion of surrounding buildings, urban street connections and local conditions. Additionally, the building is structurally complemented by the public space and the courtyards. Different roof top gardens on the 6th floor and several terraces on some floors offer the employees inspiration and recovery. The integration in the urban context is guided by the intention to take in consideration the surrounding existing buildings’ typologies, the street connections with the 3rd Viennese district as well as several local data. The construction body takes shape in relation with the surrounding building blocks with inner courts, the existing telecom building, the neighbouring apartment house AMS, low rise buildings and the Grete-Jost-Park.

2.PRIZE
2 LEVEL EU-WIDE GENERALPLANING TENDER COMPETITION

Upcoming Events

  • Protecto Wall VP Standard Installation Video

    Webinar

    Register for Free
  • How Right-Sized Plumbing Saves Money, Saves Water, and Protects Wellness

    Webinar

    Register for Free
  • Building Careers from the Ground Up: The IUPAT Floor Covering Apprenticeship and Training Program

    Webinar

    Register for Free
All Events