Heptagon House

Project Details

Project Name
Heptagon House
Location
Heceta BeachORUSA97439
Project Types
Single Family
Project Scope
New Construction
Shared By
Steven Christensen
Project Status
On the Boards/In Progress
Year Completed
2014
Size
800 ft²
Team

Project Description

Heptagon House offers a geometric solution to a set of financial and regulatory challenges.

Interested in supplementing their retirement income, our client wanted to take advantage of the spectacular scenery their home offered by turning the second half of their double lot into an AirBnB-style vacation rental. While the highly restrictive building ordinances of the city generally prohibit development of double lots, they discovered that a century-old existing foundation on the second lot offered them the opportunity to rebuild, provided the footprint adhered to the existing 195 square foot foundation.

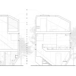
The design of Heptagon House takes advantage of the simple geometric properties of plan rotation in order to simultaneously expand the area of the upper floors and align the guest house toward an ocean view. Floor plates act as diaphragms stabilizing diagonally canted planes, allowing the project to be constructed using simple platform framing with inexpensive plywood sheathing as finish material throughout. The plan is chamfered twice at the floor plate and roof to allow for a front door and larger windows, yielding four heptagonal facades and a series of canted planes that opportunistically turn the local gabled roof vernacular on its head.

Heptagon House uses an opportunistic approach to underutilized spaces in order to fit a 2-bedroom, 2-bathroom guest house onto the tiny footprint. Spaces yielded above canted planes are used strategically by millwork and a shower bench in the bath, an elevated bed/lounge with storage in the bedroom/study, and a stair to the second floor that ascends the canted plane on an oblique.

The project embraces its very tight budget with a minimal palette of plywood surfaces and millwork, standard manufactured windows, and inexpensive white standing-seam metal roofing that wraps the entire structure in abstract linework. Bare bulbs are fitted into $3 porcelain sockets, keeping the electrical budget low. An inexpensive acrylic dome skylight is mounted on rails, allowing it to roll open and offer the urban camper a night under the stars.

The house’s one big splurge is a large custom window facing west from the kitchen. The top two panes are designed to bi-fold upward, leaving the lower pane behind as a guardrail and transforming the small dining area into an open-air balcony, and allowing visitors to enjoy the dramatic views and misty evergreen air that this deliciously unique site has to offer.

Upcoming Events

  • Protecto Wall VP Standard Installation Video

    Webinar

    Register for Free
  • How Right-Sized Plumbing Saves Money, Saves Water, and Protects Wellness

    Webinar

    Register for Free
  • Building Careers from the Ground Up: The IUPAT Floor Covering Apprenticeship and Training Program

    Webinar

    Register for Free
All Events