Hinton, Iowa, Residence

Project Details

Project Name
Hinton, Iowa, Residence
Project Types
Custom
Project Scope
New Construction
Shared By
Chinnu
Project Status
Built
Size
213 ft²
Room or Space
Bath

Project Description

2006 CHDA
Custom Bath / Merit Award

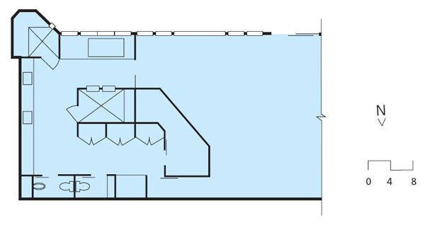
This bath used to have the blahs. It was cramped, disorganized, and outdated until architect Randy Brown stripped it and an adjacent walk-in closet back to the studs to make a fresh start. Then he moved everything around. The result is an open, serene set of rooms that shook off the blahs to blossom into an efficient, functional, and great-looking master bath.

Two client must-haves were a private toilet area and a separate shower enclosure. Brown delivered by creating a kind of central hall between the closet and bathroom where he placed the toilet and shower. The ceilings of both bathroom and closet were raised to follow the pitch of the roof above, but Brown kept a low ceiling in the connecting toilet/shower area for spatial contrast. “The hallway really frames the design on each end,” he says. Skylights in the closet and bathroom and three small square windows above the tub help to open up the two rooms and bring in natural light.

Clean, modern, and sleek is how the judges describe this bathroom/closet remodel, and that’s exactly the effect Brown’s clients were after. Materials and finishes throughout were kept natural and simple. Maple plywood storage in the closet and bath blends with the mottled-putty limestone tile that blankets the floors and wraps up the bathroom walls, forming the counter surface for the white china lavatory and the tub surround. “The continuity of the tile unifies the space,” Brown says.

Upcoming Events

  • Happier Homebuyers, Higher Profits: Specifying Fireplaces for Today’s Homes

    Webinar

    Register for Free
  • Sales is a Sport: These Tactics Are the Winning Play

    Webinar

    Register for Free
  • Dispelling Myths and Maximizing Value: Unlock the Potential of Open Web Floor Trusses

    Webinar

    Register for Free
All Events