Hobby Barn Master Bathroom-The Chameleon

Project Details

Project Name
Hobby Barn Master Bathroom-The Chameleon
Project Types
Custom
Project Scope
Adaptive Reuse
Shared By
Mahesh Rajanala
Project Status
Built
Room or Space
Bath

Project Description

The Chameleon
K + B Studio / Bath

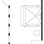
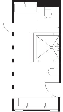
The context of its setting—an 18th-century barn renovated as a residence—makes this modern master bath look more modern still. Its floors, wainscot, tub, and room-width lavatory are fabricated of engineered stone, a material architect Joeb Moore, AIA, chose for its ability to make tight miter joints. “You can’t do that with organic stone,” he says. Planes of etched glass and crisply geometrical stainless fittings reinforce the abstracted simplicity of Moore’s intervention. Existing wood structural members wrapped in ebonized teak heighten the contrast between old and new.

But the most contemporary aspect of this room may be its shape-shifting floor plan, which allows it to function as a master bath, a pool cabana, or both. The glass partitions that flank the tub slide to close off a section of the bath as a separate room with its own small door to the pool deck. Drawing one of the glass panels attaches the tub area to either one function or the other; drawing both closes it off for complete privacy. “Or you can open up both doors, and the whole space serves the master suite,” Moore explains. “It can change in response to the need and the program.”

Upcoming Events

  • Protecto Wall VP Standard Installation Video

    Webinar

    Register for Free
  • How Right-Sized Plumbing Saves Money, Saves Water, and Protects Wellness

    Webinar

    Register for Free
  • Building Careers from the Ground Up: The IUPAT Floor Covering Apprenticeship and Training Program

    Webinar

    Register for Free
All Events