Holley Residence

Project Details

Project Name
Holley Residence
Location
BerkeleyCA
Architect
yamamar design
Project Types
Single Family
Project Status
Built
Year Completed
2013
Size
2,700 ft²

Project Description

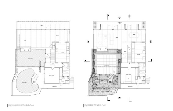
This mid-century modern home renovation in the Berkeley Hills features indoor-outdoor living, panoramic city views, sustainable finishes, structural improvements, increased energy efficiency, and enhanced daylight. A new landscape entry courtyard (previously a pool) creates a wind sheltered space for entertaining and gardening. The original concrete masonry fireplace was restored, and the existing floating concrete hearth was rebuilt. The Owner splits residency between Italy and the U.S., and wanted a home that reflected true California living. Folding doors allow seamless flow from inside to out, and railings are designed to be visually ‘quiet’. A restored wall of 17′ long old growth redwood panels anchors the design and creates a new heart for this 1950’s classic hillside home. The original entry courtyard featured a kidney shaped pool, which was removed in favor of a drought tolerant garden. Part of the lower level living space extends underneath the courtyard so we rebuilt the support structure and waterproofing system. The remodel uses reclaimed old growth redwood paneling and siding, whitewashed douglas fir beams, cast concrete, ebonized oak flooring, custom aluminum railings, Ipe decking, NanaWall® doors, Fleetwood® windows.

Upcoming Events

  • Build-to-Rent Conference

    JW Marriott Phoenix Desert Ridge

    Register Now
  • Builder 100

    Dana Point, CA

    Register Now
  • Protecto Wall VP Standard Installation Video

    Webinar

    Register for Free
All Events