House K

Project Details

Project Name
House K
Location
KumamotoJAPAN
Architect
YDS Architects
Project Types
Single Family
Project Scope
New Construction
Shared By
Yoshitaka Uchino
Project Status
Built
Year Completed
2016
Style
Modern
Size
1,729 ft²
Team
Principal Architect: Yoshitaka UCHINO
Architect: Mana Muraki

Project Description

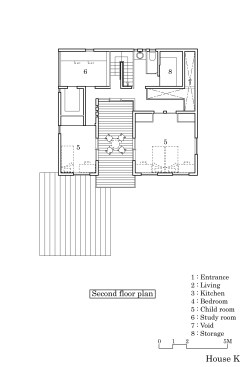
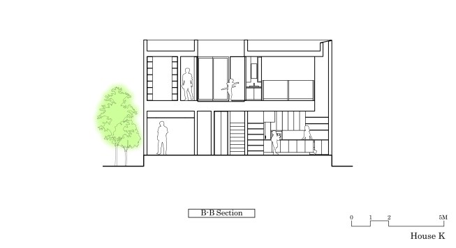
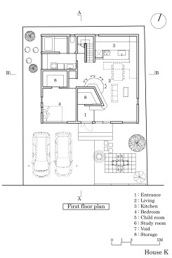
House K is located in the town surrounded by mountains. The image is shining white box in which one will live feeling the transition of light and shadow while letting go of their mind.

I intended to design interior spaces where one feel natures such as light,wind, and rain. Mixing inner spaces with outer spaces, the spaces respond to the city. Inserting the outer terrace into the white box to bring nature to the inner spaces, light and wind from the terrace go through spaces via T-shaped void. Top light and light from the terrace reflected by the walls pour into the inner spaces. These lights would express transitional beauty.

Putting the terrace between rooms for children and corridors, these spaces have migratory. Corridors around the terrace are like ‘Engawa’, semi-outdoor spaces which are typical Japanese spaces. The terrace extended towards mountains around the site will be a delightful space. In the living room spatially sandwiched between the terrace and the garden, providing the view of trees and the sky feeling various light.

The thin white plate floating besides the white box is my image. To make this image come true, the column of the roof are a pair of thin steel poles. One will see ‘one’s own sky’ through the slit of the white volume from the terrace, the living room in the 1st floor, rooms for children. House K adds a new scene on the existing city. The distinctive form consists of white volume, floating white plate, and framed sky provides tranquil spatial qualities for the landscape.

House K is designed to reveal a sequence of spaces combining expansiveness and symbiosis. Nature and the architecture stimulating with each other, spaces expand to infinity.

Upcoming Events

  • Happier Homebuyers, Higher Profits: Specifying Fireplaces for Today’s Homes

    Webinar

    Register for Free
  • Sales is a Sport: These Tactics Are the Winning Play

    Webinar

    Register for Free
  • Dispelling Myths and Maximizing Value: Unlock the Potential of Open Web Floor Trusses

    Webinar

    Register for Free
All Events