Huynh Residence

Project Details

Project Name
Huynh Residence
Location
Cedar HillTX
Project Types
Single Family
Project Status
Built
Year Completed
2015
Size
2,800 ft²

Project Description

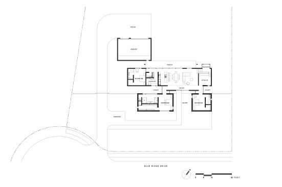
Huynh Residence The south-facing entry courtyard is enclosed on three sides with two stone veneer bedroom pavilions and an entry wall sheathed in a cypress rain screen. Two glass boxes flank the courtyard wall, acting as containers for daylight. One box is placed to the northeast end of the entry hallway to capture morning light, the other to the southwest for the evening light. Daylight in the courtyard enters the glass boxes through a narrow slot of glass inserted between the entry courtyard wall and bedroom pavilions. A wall bisects the glass volumes to create a visual buffer between the bedroom pavilions and living areas. Passage into the bedroom pavilions is through the glass boxes. Steps lead to the glass-enclosed reading alcove, which opens to the northern daylight. The reading alcove is elevated above the exterior ground plane offering protected views into the tree canopy.

Upcoming Events

  • Protecto Wall VP Standard Installation Video

    Webinar

    Register for Free
  • How Right-Sized Plumbing Saves Money, Saves Water, and Protects Wellness

    Webinar

    Register for Free
  • Building Careers from the Ground Up: The IUPAT Floor Covering Apprenticeship and Training Program

    Webinar

    Register for Free
All Events