Jazz Hourse

Project Details

Project Name
Jazz Hourse
Location
LakewoodCO
Architect
F9 Productions
Project Types
Single Family
Project Status
Built
Year Completed
2014
Size
2,813 ft²

Project Description

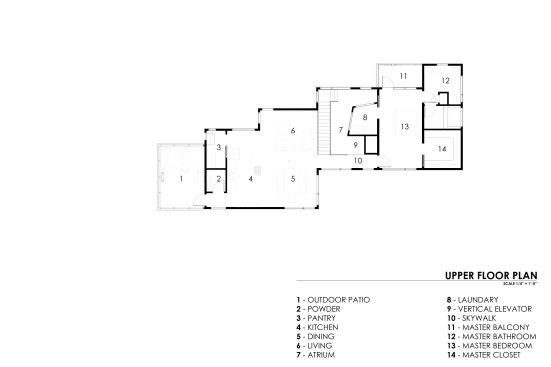
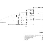
Jazz house was designed in 2013 for 2 tenured veterans of the United States Army, Kimberly Rieniets and Chad Schneider. Kimberly and Chad contacted us with a very unique program for designing their new home on an empty and irregularly triangle shaped lot that was nearly unbuildable. The front setback of 60′ and the rear setback of 15′ forced us to petition for a variance via hardship to allow the setback in the rear to only be 5′ in order to make the lot buildable. We were successful in our endeavor for this variance and the city of Lakewood has subsequently used it as an example for successful spot zoning. As mentioned, their program for design was unique to say the least, both Kimberly and Chad were encumbered with a degenerative joint disease affecting their feet, knees,and backs which impaired their ability to use stairs, restricted their walking distance, and impaired their joint range of motion, due to their services in the Army and required the design to be fully ADA accessible as they aged in place. On a typical shaped lot with plenty of room this would be an easy task but due to the setback constraints and irregularity of it’s shape we had our work cut out for us. A future spot for the elevator also had to be taken inconsideration to make sure they could age in place easily. Chad, a Jazz musician, also required a music studio for practice and the ability to entertain a small crowd privately. Finally, both clients expressed to us their desire to create a home that would be unforgettable to the public and their private guests. Something unique, unforgettable, and visually striking. What resulted from these design parameters and site constraints is the “Jazz” house. One of the most unique contemporary homes in the greater Denver metro area. As one arrives at the site of the home, the form of the house arises from the ground as if a musician is tapping upon piano keys. The varying roof-lines are a reflection of the musician and music to be found within while the scissor and v-columns dance along to the architectural melody. The floor plans then mirror the shape and height of the house, while stepping back to meet the setbacks. The main floor consists of a 2 car garage with the doors facing away from the street for a private and discreet entrance. Center right of the garage is a 2-story foyer with water feature, open tread stairs, and an abundance of natural light throughout. Moving further rightward is a junior suite with living room, bedroom, and of course, Chad’s studio. The studio features a glass garage door that opens to the outdoor performance area and studio. The upper floor is unique in that most of the public space is located on this floor, the kitchen and living room. As you ascend the stairs to the top of the sky walk moving leftward is the master-suite, laundry and private balcony. To the right of the sky walk one is met with the indoor dining room, living room, kitchen, and finally, the outdoor dining room that overlooks the outdoor performance area below. Since the occupation of the Jazz house in early 2015, Kim and Chad have been nothing short of thrilled with their dream home. Lastly, we were able to accomplish all of this with a modest budget of only $230 per square foot.

Upcoming Events

  • Build-to-Rent Conference

    JW Marriott Phoenix Desert Ridge

    Register Now
  • Builder 100

    Dana Point, CA

    Register Now
  • Protecto Wall VP Standard Installation Video

    Webinar

    Register for Free
All Events