Kampos House

Project Details

Project Name
Kampos House
Location
KamposParosGREECE
Project Types
Single Family
Project Scope
New Construction
Shared By
George Messaritakis
Project Status
Built
Year Completed
2016
Style
Modern
Team
Architect: Lantavos Projects

Project Description

Located in the settlement of Kampos, at the Cycladic island of Paros, this house is enhanced by the sublime rural landscape that surrounds it, which consists of cereal fields, small vineyards and olive groves.
During the design process, emphasis was given to the analysis of local characteristics and conditions, such as direct contact with nature and outdoor living, the strong light of Cyclades and wind. These here greatly contributed to the design of the house, the aesthetic approach of which was done through a modern and minimalistic prism.
In the house will reside a 5-member family throughout the year, with all that this might entail.

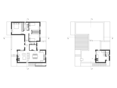
The building form derives from the decomposition of a single rectangular prism (an archetypal form of habitation of the island) and the formation of an enclosed veranda protected from the strong northern winds. The removed volume is placed on the terrace of the building to become an independent studio or relaxation space, where one can enjoy unobstructed views towards the settlement, Pounta area and Antiparos island.

The two rectangular volumes of the ground floor, slightly recede, one in respect to the other, to reveal part of the veranda and create a path to the house entrance. These form the backbone of the residence, with the first containing the common areas while the second is place for the private ones, connected together with auxiliary spaces.

The orientation and shape of the building volumes, the strategically positioned single window on the north façade, the careful installation of a façade insulation system to avoid thermal bridging, as well as, additional elements like wooden pergolas, are all enhancing the energy performance in of the dwelling with consideration of local conditions.

Upcoming Events

  • Happier Homebuyers, Higher Profits: Specifying Fireplaces for Today’s Homes

    Webinar

    Register for Free
  • Sales is a Sport: These Tactics Are the Winning Play

    Webinar

    Register for Free
  • Dispelling Myths and Maximizing Value: Unlock the Potential of Open Web Floor Trusses

    Webinar

    Register for Free
All Events