Kashubian House

Project Details

Project Name
Kashubian House
Project Types
Single Family
Shared By
Ayda Ayoubi
Project Status
Built
Year Completed
2016
Size
721 ft²

Project Description

FROM THE ARCHITECTS:

Kashubia is an unusually picturesque region in the north of Poland, rich in pine forests, meadows full of flowers, and crystal-clear lakes. Near one such lake – Lake Gowidliński –lies this place of repose and close contact with nature. The idea behind this project was to create a simple, functional and economic building which can be used all year round.

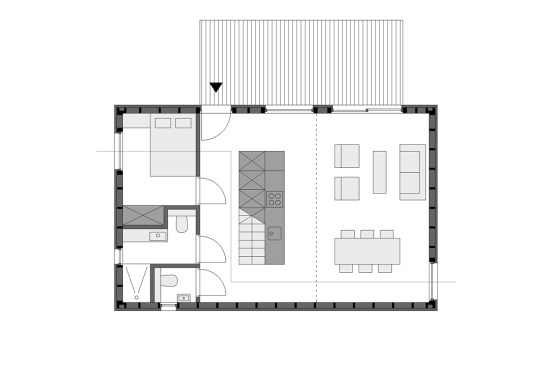
As a large part of the site is covered with trees, the house was designed with a compact shape. Its asymmetrical form is a result of the functional arrangement of the interior. In spite of the limited size of the house, it proved possible to organise a spacious day zone on the ground floor comprising living room, dining room, and a kitchen annex with direct access to the terrace. The staircase located in the centre separates the living room from the hall and from the closed rooms: the main bedroom, bathroom, and toilet. The asymmetrical roof allows sufficient height in part of the building for an additional floor with mezzanine and two guest bedrooms.

The house is built using a wooden skeletal construction. The elevation is covered with pine boards, a natural material traditionally used in this part of Poland. The exterior of the house is dark and therefore matches its environs in a harmonious manner, while in contrast the interior uses wood in its natural colours. The irregularly positioned windows allow daylight into all of the rooms and frame the views of the surrounding landscape.

Upcoming Events

  • Protecto Wall VP Standard Installation Video

    Webinar

    Register for Free
  • How Right-Sized Plumbing Saves Money, Saves Water, and Protects Wellness

    Webinar

    Register for Free
  • Building Careers from the Ground Up: The IUPAT Floor Covering Apprenticeship and Training Program

    Webinar

    Register for Free
All Events