Kate Tiedemann College of Business, University of South Florida – St. Petersburg

Project Details

Project Name
Kate Tiedemann College of Business, University of South Florida – St. Petersburg
Project Types
Education
Project Scope
New Construction
Shared By
mdeak
Project Status
Built
Year Completed
2017
Size
68,000 ft²
Certifications & Designations
LEED Gold
Team
Architect: ikon.5 architects / Harvard Jolly Architecture, a Joint Venture

Project Description

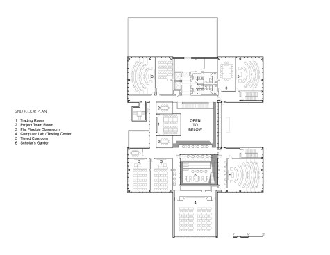
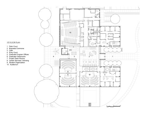
Conceived as an ‘athenaeum for business scholars’, the three story, 68,000 square foot structure takes inspiration from its Tampa Bay setting and the indigenous coral stone. Like the stone, the building is a porous container with openings carved out of its volume that house various program elements and allow sunlight and landscaping to penetrate deep within the structure’s core. One of these openings is a Palm-lined courtyard with seating that supports learning at the building’s entrance. Other openings house a light-filled central commons and an adjacent scholar’s garden that support casual learning and encourage productive collisions to occur between students and faculty as they move through the building. The multi-story commons and scholar garden are spatially intermeshed and ringed with active programs spaces including a trading room, community room, break rooms and classrooms that connect the learner to his or her environment.  The most unique feature of the building is its glass façade that metaphorically recalls the openings in regional organic coquina or coral stone albeit in an abstract and hyperbolized manner. To achieve a three dimensional impression and depth of surface, such as one would find in coquina, the design team created an inventive composition of glazing units that make a flat glass surface appear to have depth and dimension. The composition is made of a ceramic fritted first pane that is double run with two tones of a circular pattern. The second pane is reflective one way mirror glass that allows view out but reflects the patterned ceramic coating of the first pane outward. The result is a glass surface that has a three dimensional quality or a shadowed depth that belies its constructive flatness. In addition, the glazing system is designed to resisted hurricane force winds and projectiles and reject the intensive Floridian heat gain. This project is a joint venture partnership between ikon.5 architects-Princeton, New Jersey and Harvard Jolly Architects-St. Petersburg, Florida

Upcoming Events

  • Happier Homebuyers, Higher Profits: Specifying Fireplaces for Today’s Homes

    Webinar

    Register for Free
  • Sales is a Sport: These Tactics Are the Winning Play

    Webinar

    Register for Free
  • Dispelling Myths and Maximizing Value: Unlock the Potential of Open Web Floor Trusses

    Webinar

    Register for Free
All Events