Kitchen of the Year

Project Details

Project Name
Kitchen of the Year
Project Types
Custom
Project Scope
New Construction
Shared By
Suren
Project Status
Built
Room or Space
Kitchen

Project Description

Kitchen

All kitchens eventually outlive their usefulness, even if they are the handiwork of a revered custom home pro. Such was the case of this kitchen in a 33-year-old house built by Joseph Eichler, an esteemed builder and developer of Modern houses in the San Francisco Bay area and Southern California during the 1960s and 1970s.

The owners needed a kitchen more in sync with the realities of 21st-century life—it had to accommodate more of everything, from small and large appliances to more people gathering and cooking at once. Yet the design had to seamlessly integrate with the Modern spirit of the existing house.

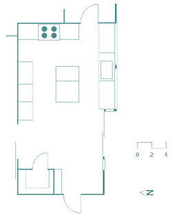
Architect Doug Thornley stayed within the existing kitchen footprint, but manipulated the walls and reorganized the layout for a more efficient working arrangement. He flipped the positions of the original kitchen and eating spaces, gaining extra footage for the kitchen in a floor-to-ceiling glass alcove.

Having designed a number of commercial kitchens, Thornley knew that professional chefs organize their kitchens by task—wet, prep, cooking, and support—and that practical division of labor underpins his new scheme. The sink cabinet floats along the south-facing window wall, admitting light from above and below. It’s just a step from the prep center—a walnut and limestone topped kitchen island, which is another step away from the cooking center along the east wall. The support area, on the interior north wall, includes the refrigerator and a tall tamboured cabinet that houses the owners’ small appliances, all plugged in and ready for service.

Sleek walnut cabinetry set against stainless steel appliances, surfaces, and rolling table captures the appropriate Eichler style. Painted accents in red and apple green chosen from a palette of colors developed by another Modern master, Le Corbusier, add to the high Modern spirits. The result, said the judges: absolutely fabulous.

Upcoming Events

  • Happier Homebuyers, Higher Profits: Specifying Fireplaces for Today’s Homes

    Webinar

    Register for Free
  • Sales is a Sport: These Tactics Are the Winning Play

    Webinar

    Register for Free
  • Dispelling Myths and Maximizing Value: Unlock the Potential of Open Web Floor Trusses

    Webinar

    Register for Free
All Events