Laidley Street Residence

Project Details

Project Name
Laidley Street Residence
Project Types
Shared By
LeahD
Project Status
Built
Size
3,961 ft²
Team
Builder: Design Line Construction, Builder

Project Description

Text by Nate Berg

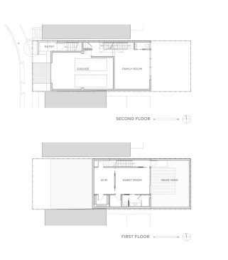
On a narrow, empty lot in San Francisco’s Glen Park neighborhood, local firm Michael Hennessey Architecture managed to squeeze in an elegant home that—despite its small footprint—covers nearly 4,000 square feet over four floors. Floor-to-ceiling windows open the spaces to the outside, and the smart placement of the straight-run staircase at the northern edge of the home allows for expansive open floor plans on each level.

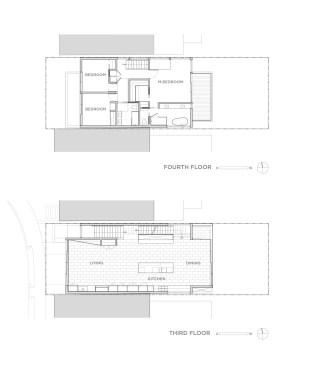
The heart of the house, which was built by Design Line Construction, is one level above the street, where the open floor plan creates a large and flowing space that holds the living room, dining room, and kitchen areas, the boundaries of which blur in the open room. Rift-sawn oak veneer cabinetry runs the length of the space, which is bookended by sliding walls of high-performance windows that open to big views of the city in front, and quieter, but no less lovely, views of the small yard in back.

A ground-floor guest bedroom opens onto the rear yard, while the master suite and two additional bedrooms occupy the top floor. From its perch on a hillside site, the house offers stunning views of downtown San Francisco, which seemingly pour in through its generous windows at every level.

I like that it’s a very modest house. It’s a compact project with wonderful details.
— Juror Katherine Hogan

Architect: Michael Hennessey Architecture
Builder: Design Line Construction
Size: 3,961 square feet
Cost: Withheld

Upcoming Events

  • Protecto Wall VP Standard Installation Video

    Webinar

    Register for Free
  • How Right-Sized Plumbing Saves Money, Saves Water, and Protects Wellness

    Webinar

    Register for Free
  • Building Careers from the Ground Up: The IUPAT Floor Covering Apprenticeship and Training Program

    Webinar

    Register for Free
All Events