Lakeside Camp Makeover

Project Details

Project Name
Lakeside Camp Makeover
Project Types
Second Home
Project Status
Built
Year Completed
2016
Size
7,500 ft²

Project Description

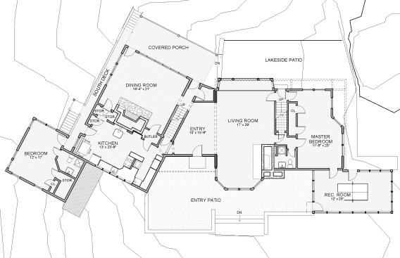
This c. 1900 Arts and Crafts home was beloved by the Owners but was under-built and didn’t meet the Owner’s modern needs. The project essentially re-built the original house with material upgrades and a focused reorganization of interior spaces to achieve something new that feels like it’s “always been there.” Originally constructed as two buildings with an awkward connection between them, the new design retains the linked form, basic footprint, and feel of the original house while creating expansive new spaces more open to each other on the interior. Changes include a new 2-story living room under a west facing gable, a south-facing screened porch that expands the dining room, upper-level two-bedroom suites with shared baths, and new second floor bedroom and lower level walk-out space above and below an early service wing of the building. Also re-constructed were the shop and garage, the boathouse, and a tiny painting studio.

Upcoming Events

  • Protecto Wall VP Standard Installation Video

    Webinar

    Register for Free
  • How Right-Sized Plumbing Saves Money, Saves Water, and Protects Wellness

    Webinar

    Register for Free
  • Building Careers from the Ground Up: The IUPAT Floor Covering Apprenticeship and Training Program

    Webinar

    Register for Free
All Events