Lakeview Pantry

Project Details

Project Name
Lakeview Pantry
Location
3945 N. Sheridan RdChicagoIL60613
Project Types
Shared By
Beth Garneata
Project Status
Built
Year Completed
2016
Style
Modern
Size
7,500 ft²

Project Description

Lakeview Pantry has transformed a former dilapidated pet daycare into their first permanent home and reinvented a program typology that often carries a negative stigma into one that has a positive impact on the community it serves and its neighbors. The non-profit organization provides nutritious groceries and essential social services to residents on the North Side of Chicago, where approximately 1 in 9 people struggle with hunger.

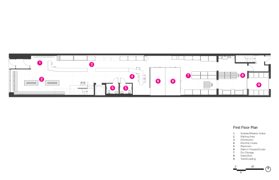
The two-story brick masonry structure, formerly home to a pet daycare, is prominently located adjacent to an elevated rail station in Chicago’s Lakeview neighborhood. The renovated building with its new, large, storefront windows and colorful, bright interiors and signage immediately sends a welcoming message to both neighbors and clients.

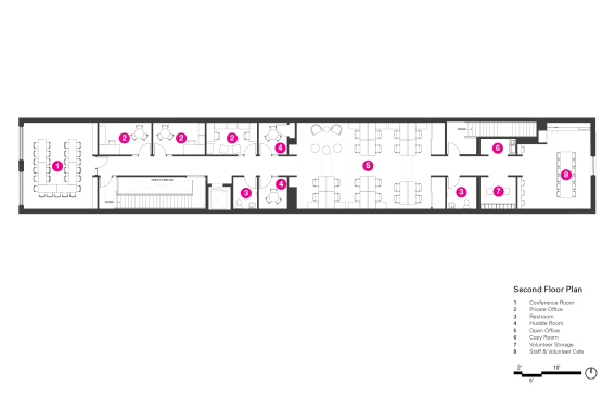
The 7500-sf building doubles the space of their previous location, provides more room for food distribution and social service programs, and for the first-time houses all staff under one roof. The program includes a waiting area, distribution counter, walk-in freezer/cooler, dry storage, sorting room, private huddle rooms, conference/seminar room, staff offices, volunteer storage and shared lunch room/café.

The goal of the architecture is to create a space that provides dignity to those in time of need, furthers the Pantry’s mission and raises awareness about hunger and poverty in our city. The project uses humble materials in imaginative ways to create a simple, welcoming and safe environment for all.

The design is informed by hours of observation and strives to increase efficiency and bring joy to its clients. Large, colorful graphics and signage help communicate functionality and locations of foods in both verbal and non-verbal ways, making it easier for those with low-literacy to understand how to navigate the space while adding some levity to a serious and overwhelming experience.

A dedicated desk at the entrance allows a volunteer to greet each guest as they enter and the bright white distribution counter running through the space facilitates an organized flow of interaction and food distribution as volunteers help clients select fresh produce, meats, dairy, and staples; at check-out, the flower display leaves clients smiling as they choose a fresh bouquet to bring home.

Refrigeration located directly behind the counter provides volunteers the opportunity to focus solely on service to each client without the disruption of restocking perishables several times during distribution. Custom-built bench seating in the waiting area maximizes seated capacity and allows for more efficient circulation space.

Acoustics were a key concern in the comfort of the space. An acoustic plaster ceiling and insulated glazing—a double window unit with an air cavity—creatively protects the interior from vibration and elevated train noise at a fraction of the cost of manufactured acoustical windows.
The design and program model has served as an inspiration to other food pantries and social service agencies in the area and across the nation.

The Lakeview Pantry frequently conducts tours and informational open houses for its fellow agencies to experience and learn from their successful model.

Upcoming Events

  • Happier Homebuyers, Higher Profits: Specifying Fireplaces for Today’s Homes

    Webinar

    Register for Free
  • Sales is a Sport: These Tactics Are the Winning Play

    Webinar

    Register for Free
  • Dispelling Myths and Maximizing Value: Unlock the Potential of Open Web Floor Trusses

    Webinar

    Register for Free
All Events