Light and Shadow Box

Project Details

Project Name
Light and Shadow Box
Location
San AntonioTX
Project Types
Single Family
Project Status
Built
Year Completed
2015
Size
3,000 ft²

Project Description

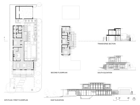
Sited on a corner lot, the Light and Shadow Box anchors the Southern border of a Cottage District in a San Antonio neighborhood bounded by a sylvan lined nature trail. Consistent with the historical precedence, the project utilizes a modern “one room wide” open plan that mimics the proportions of the original cottages in the area. The front yard porch along the south elevation reaches out as an inviting gesture towards the neighborhood. The 50’-0” wide lot houses a two story main house of 3000 Sq.Ft. with a ground floor master bedroom, three second floor bedrooms / bathrooms, and two car garage. This narrow lot demanded space saving innovations and tight cohesive design solutions. The living room features a floating two-way fireplace that serves multiple spaces while also housing a mechanical system, and providing an unobtrusive television location. At the stair well, the hanging folded steel plate with a blackened finish subtly emphasizes the stair’s materiality and construction method while integrating with the black painted steel structure throughout the residence without inhibiting courtyard views. Gracious glass window / door openings act to merge the interior spaces with the pool courtyard defined by the perimeter stone wall. These glass openings continue past the suspended ceiling plane where a recessed cove conceals return air vents and window treatments. Exterior steel arbors serve as protection from the sun while also casting shadows on the white stucco walls.

Upcoming Events

  • Protecto Wall VP Standard Installation Video

    Webinar

    Register for Free
  • How Right-Sized Plumbing Saves Money, Saves Water, and Protects Wellness

    Webinar

    Register for Free
  • Building Careers from the Ground Up: The IUPAT Floor Covering Apprenticeship and Training Program

    Webinar

    Register for Free
All Events