Lorber Tarler Residence

Project Details

Project Name
Lorber Tarler Residence
Project Types
Custom
Shared By
Custom Home Staff
Project Status
Built
Style
Modern
Size
1,600 ft²

Project Description

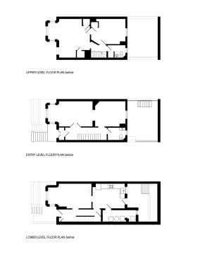
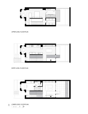
Located in the Mount Vernon Square neighborhood of Washington DC, an existing row house has been reimagined as a modern, light filled urban dwelling for a professional couple. The compartmentalized interior of the existing house was gutted, and the rear façade and porch were removed. Surrounded by buildings on three sides and limited to the existing seventeen foot wide by thirty foot deep footprint, the new floor layout and open plan are intended to provide dynamic interior spaces in sharp contrast to the originally dark, cramped house.

A new stair and glass bridge system connects all three floors, with a skylight the entire length and width of the new stair opening above. This project relies on the verticality of the row house typology to provide spacious volume, as opposed to large floor area.

The end result of this renovation represents the co-existence of a modern vocabulary adapted to current living patterns within an existing historically significant framework.

Upcoming Events

  • Build-to-Rent Conference

    JW Marriott Phoenix Desert Ridge

    Register Now
  • Builder 100

    Dana Point, CA

    Register Now
  • Protecto Wall VP Standard Installation Video

    Webinar

    Register for Free
All Events