Malibu Crest

Project Details

Project Name
Malibu Crest
Location
MalibuCA
Architect
studio bracket
Project Types
Single Family
Project Status
Built
Year Completed
2013
Size
4,990 ft²

Project Description

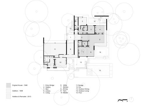
Addition + Remodel to 1940’s Malibu SFR 3 Bed / 4 Bath, 5 car Garage,Pool, OWTS, Run-off detention system, Solar Completed Jan. 13 2013 984 sf. addition; 4,990 sf total The original house was built in 1949 with an addition in the late 50’s. Our goal was to open up the plan and re-organize the circulation around a central utility core and kitchen and to create a new master suite.We wanted to strengthen the indoor/outdoor relationship and maximize the coastal views which span from Palos Verdes to the Channel Islands It was important that the scope of work be limited to a “Remodel” in order to retain the many old growth trees that have grown up around the house over the last 60+ years. By working the plan and program around many of the existing walls and limiting the additonal floor area, we were able to meet our programmatic goals while maintaining the best qualities of the original architecture.

Upcoming Events

  • Protecto Wall VP Standard Installation Video

    Webinar

    Register for Free
  • How Right-Sized Plumbing Saves Money, Saves Water, and Protects Wellness

    Webinar

    Register for Free
  • Building Careers from the Ground Up: The IUPAT Floor Covering Apprenticeship and Training Program

    Webinar

    Register for Free
All Events