Mason Branch Farm

Project Details

Project Name
Mason Branch Farm
Location
BlairsvilleGA
Project Types
Single Family
Project Status
On the Boards/In Progress
Year Completed
2017
Size
2,170 ft²

Project Description

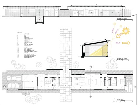
The design of the Mason Branch Farm represents a return to family roots for the owners, one of whom grew up on the beautiful north Georgia property. Their interest in a sustainable lifestyle, organic gardening, viticulture, aquaculture and sustainable land use completely inform the design solution. The site is a former cornfield, the context is rural and primarily farmland. The project is undergoing pricing and scheduled to begin construction in the summer of 2015. The one-room-wide shotgun design of the house combines southern vernacular concepts of cross ventilation and livability. A traditional dogtrot transects the middle of the house as main entry on one side and open patio living on the other. The house is a study in energy conservation, economy of materials and minimalist design. Passive features are incorporated throughout. The east/west linear orientation is ideal for the home’s southern climates. Extensive eaves shelter south facing glazing but allow winter sun in to warm the concrete slab floors. Walls are comprised of insulated concrete masonry units utilizing thermal mass to retain investments in heating and cooling. An intensive earth sheltered roof with 14” of planting medium covers the main living area. The shop and circulation areas of the house are unconditioned, relying on cross ventilation in summer and thermal mass in winter for comfort control. Total conditioned space for the house is, as a result, less than 1,700 square feet. A water-to-water geothermal heat pump connects to a pond loop with variable speed recirculating loops. The zoned geothermal system serves short run ducts in portions of the house for cooling and dehumidification, a hydronic floor heating system throughout and hot water supply. Anticipated HERS rating for the house is less than 20.

Upcoming Events

  • Protecto Wall VP Standard Installation Video

    Webinar

    Register for Free
  • How Right-Sized Plumbing Saves Money, Saves Water, and Protects Wellness

    Webinar

    Register for Free
  • Building Careers from the Ground Up: The IUPAT Floor Covering Apprenticeship and Training Program

    Webinar

    Register for Free
All Events