Maverick Remodel

Project Details

Project Name
Maverick Remodel
Location
RenoNV
Architect
GuiDenby, Inc.
Project Types
Project Scope
Renovation/Remodel
Shared By
dmadsen
Project Status
Built
Size
2,434 ft²

Project Description

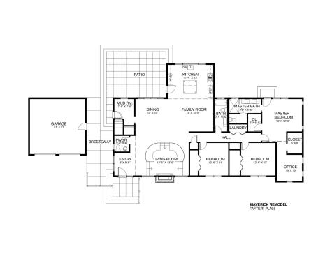
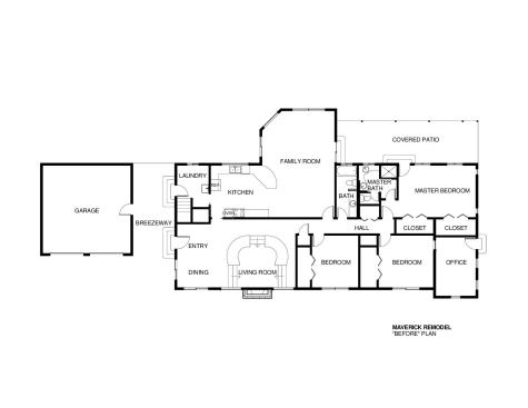
The Maverick Remodel transformed a 1960s ranch-style house into a bright, modern family home. The house had suffered from two previous remodels/additions which left it lacking in function and daylight. The home was also past due for an update, with low “popcorn” ceilings, no defined front entry, and not enough daylight. The homeowner’s greatest desires were to give the home a true entry, make the home more open, and to have an updated kitchen overlooking the pastoral views and functioning as the hub of activity in the home. This was accomplished by relocating the kitchen, eliminating a wall which divided the living spaces, and raising the ceilings in the main area of the home. A new front entry door was also created. While two of the bedrooms and one bathroom remained largely the same in plan, the master bedroom, master bath, and office areas were reconfigured, creating access to the office from inside the home. Previously, the office could only be accessed from outside of the house, rendering it useless for the homeowners. In addition, finishes and lighting throughout the house were updated. In a nod to the homes 1960s style, the sunken living room with custom curved sofas was saved, though raised slightly to make the area not as deep. The result of all of these changes is a dramatic transformation from dysfunctional and outdated to a bright, contemporary home that is both comfortable and beautiful.

Upcoming Events

  • Protecto Wall VP Standard Installation Video

    Webinar

    Register for Free
  • How Right-Sized Plumbing Saves Money, Saves Water, and Protects Wellness

    Webinar

    Register for Free
  • Building Careers from the Ground Up: The IUPAT Floor Covering Apprenticeship and Training Program

    Webinar

    Register for Free
All Events