Mazandaran Construction Engineering Organization

Project Details

Project Name
Mazandaran Construction Engineering Organization
Location
mazandaranIRAN
Project Types
Education
Shared By
Mostafa Shahbazian
Project Status
Built
Year Completed
2012
Size
20,000 ft²

Project Description

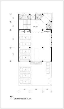
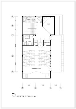
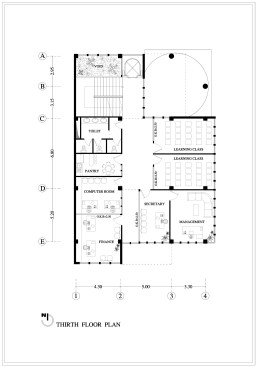
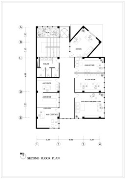
Tonekabon Construction Engineering organization:
Architecture is the combination of beauty and Function. A combination that should lead to a legible content. A volume that is the representative of its function. The construction engineering organization is the place to organize the current affairs of engineers and construction in cities. A place to connect engineers and clients.
Tonekabon Engineering Organization is located in a coastal city on the periphery of the Caspian Sea.
The building has total area of 15,000 square feet in 5 floors with office functions.
For ease of circulation, vertical access in the building is located next to the main entrance. The space on the staircase creates a sense of beauty playing with light and shadow, which increases the sensational richness. The project focuses on landscape and climate, the benefits of light and wind, accessibility, and other factors influencing the design.

Upcoming Events

  • Happier Homebuyers, Higher Profits: Specifying Fireplaces for Today’s Homes

    Webinar

    Register for Free
  • Sales is a Sport: These Tactics Are the Winning Play

    Webinar

    Register for Free
  • Dispelling Myths and Maximizing Value: Unlock the Potential of Open Web Floor Trusses

    Webinar

    Register for Free
All Events