Mi Casita

Project Details

Project Name
Mi Casita
Location
WashingtonD.C.
Architect
KUBE Architecture
Project Types
Single Family
Project Scope
Renovation/Remodel
Project Status
Built
Style
Modern
Team

Project Description

FROM THE AIA DC:

After more than 30 years of traveling and living away from Puerto Rico, Carmen decided she wanted her DC row house to be reminiscent of her island home. The design highlights three key elements: COLOR: Colors used are traditional to Puerto Rico, and the composition acts as a 3-D collage within the house. The east wall is lined with storage elements painted orange and yellow. Other elements are neutral black to contrast the rich colors. The west wall is lined with artwork from Carmen’s collection island artists. LIGHT: Interior walls were removed and large windows installed on the rear facade. Casement windows replaced all the original double hung windows, and light colors highlight surrounding ceilings and walls. MATERIALITY: The living space flooring is white porcelain tile, while the second floor is a dark bamboo. The wood “mampara” screen at the stairs is a white-washed poplar, and is framed with blackened steel. The poplar reappears on the second level and at the rear “bridge,” terminating at the juliette balcony.

With this renovation, a bit of island style made its way to the
urban core. The owner of this nearly century-old DC rowhome grew up in Puerto
Rico, and a home that reminded her of those early years was a must. The project
architects focused on three key elements—color, light, and materiality—to create
a fresh design that breathes new life into the 2,400-square foot space.

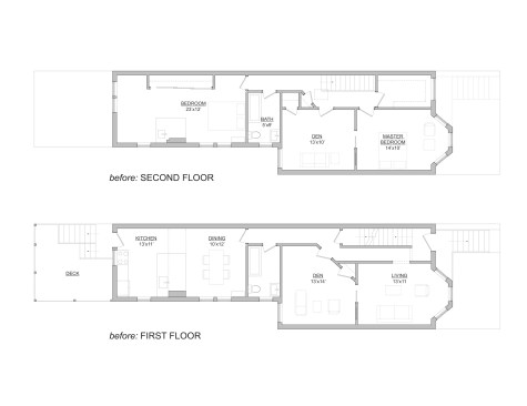
By removing most of the interior walls, Kube Architecture
transformed the previously segmented floor plan into an open living area.  The addition of large windows on both levels
of the rear façade and an enlarged skylight create abundant natural light throughout
the house, while an open-riser staircase and light colors enhance the airy
atmosphere.

The rich oranges, yellows, and greens used in the design are
traditional to Puerto Rico. Bold sculptural elements and artwork on opposing
walls act as a “3-dimensional collage” within the house and pop against an
otherwise neutral palette. Muted bamboo and poplar finishes appear throughout
the home, used for flooring, the stairs’ mampara screen, and on pendant light
fixtures. 

See the video about the redesign and more winners of the 2015 Remodeling Design Awards.

Upcoming Events

  • Protecto Wall VP Standard Installation Video

    Webinar

    Register for Free
  • How Right-Sized Plumbing Saves Money, Saves Water, and Protects Wellness

    Webinar

    Register for Free
  • Building Careers from the Ground Up: The IUPAT Floor Covering Apprenticeship and Training Program

    Webinar

    Register for Free
All Events