Moore House in the Woods

Project Details

Project Name
Moore House in the Woods
Location
MiamisburgOH
Project Types
Single Family
Project Status
Built
Year Completed
2015
Size
2,000 ft²

Project Description

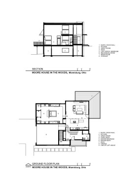
This project involves designing a home for the daughter of the owner of the 28.64 acre farm tract from which this 1.84 acre site is subdivided while preserving the seclusion this forested area provides to buffer the farm from the road. This home shares the site with the original farmstead home inhabited by a second daughter and a new home the owner built for him and his wife a decade ago. The challenge is to design a home to the modern influences of the daughter while integrating the structure into a sensitive natural environment overlooking a beautiful and picturesque gorge from a creek that has been carved by years of erosion to widen just at the location of the new home. Nestled in the mature woods along a cliff overlooking a stream, the House in the Woods site is totally enveloped by a dense forested stand of trees with canopies rising sixty feet and more above the forest floor. To the north, the balance of the site opens up where the active farm provides pastures for dairy cows, hogs and chickens, vegetable gardens, barns for livestock, root cellars crafted into natural berms, and buildings for processing meat, poultry and space for preserving and canning fruits and vegetables for a self-sustaining lifestyle. In keeping with this minimalist lifestyle, the design utilizes simple forms and lines along with only four simple materials suggesting a deep-seated connection to the natural environment and farm. Stone, concrete, stainless steel and wood form the major elements of the simple palette of finishes. The exterior of the house consists of cedar wood siding laid in a strong linear horizontal manner to distinguish the structure from the verticality of the woods. Custom galvanized metal wall panels, a familiar material used on most farms, is utilized in a patchwork quilt defining the block forms and a “silo” tower rising on one corner of the home. The drive-pin fasteners chosen reinforce a modern industrial or farm feeling. Native stack stone rises out of the river washed stone drive and wraps to where the stream redirects along the rear of the home. Cantilevered entrance canopies wrapped in galvanized metal bolster the simple scheme of exterior materials. A wrap-around rear deck, enhanced by a virtually transparent aircraft cable railing system, cantilevers beyond the leading edge of the embankment to the gorge offering a spectacular view to the ever-changing stream below. Entering through the front door, one immediately experiences a two-story stack stone wall suggestive of the stone ledges occurring naturally around the gorge and creek bed. Seemingly floating, wood-wrapped steel stair risers project from within the stone wall without visible means of support and an aircraft cable railing system keeps the feeling light and airy as one ascends to the second floor. Progressing past built-in glass front coat closet you come to the kitchen. Gloss white laminate cabinetry and a stainless steel cabinetry island, both with 3”deep concrete countertops mate harmoniously with a unique backsplash, a dining table extending from the island and ceiling that defines the kitchen using a wood patterned and textured luxury vinyl tile (LVT). Large ceramic tiles, with a look of concrete, flow throughout the entire first floor. The two-story great room soars high with unique floor to ceiling windows, strategically placed to provide full-height views of trees and the canopy of the surrounding woods. Clean lined furnishings of the great room, accentuated by a rustic hand-knotted rug, aligns perfectly with the wall-hung entertainment center in defining the gathering space. Inhabitants and guests are treated to views of the seasonally-changing, natural environment from every angle. A slightly upscale, more refined treatment for the interior base, trim, some cabinets, appliances, plumbing trim, sliding barn doors and hardware is achieved by the use of stainless steel vs. the galvanized steel of the exterior. LED lighting used throughout the homes interior and exterior enhances the quality of the space while providing low operational cost. The master bedroom is embellished with site-built concrete wall panels forming the headboard/dividing wall and shower walls. Luxury vinyl tile ties the interior together by being used again for the bed platform and all cabinet fronts and countertop in the master bath. The project is enriched by a few pieces of furniture constructed from materials that have significance to the owner. The coffee table is custom fabricated from a slab of 100 year old Hawaiian Koa wood that had been stored in the family’s woodworking business for over 25 years. The great room end table is fabricated from a Chinese Elm tree that had fallen several years ago on the site. The “inside out” virtues exuded by this home bring an important human connection to nature and its restorative qualities. “Less really is….Moore House in the Woods.”

Upcoming Events

  • Modernize Your Model Homes with Music

    Live Webinar

    Register for Free
  • Happier Homebuyers, Higher Profits: Specifying Fireplaces for Today’s Homes

    Webinar

    Register for Free
  • Sales is a Sport: These Tactics Are the Winning Play

    Webinar

    Register for Free
All Events