Motherhouse

Project Details

Project Name
Motherhouse
Location
DenverColorado
Project Types
Single Family
Project Scope
New Construction
Shared By
Madeleine D’Angelo
Project Status
Built
Year Completed
2020
Size
3,100 ft²

Project Description

This article appeared in the March 2021 issue of ARCHITECT.

In the summer of 2017, Paul Andersen, AIA, began designing a house for his mother—but not one that she would live in. Following a tradition of early-career architects taking on supportive family as clients, Andersen collaborated with his mother, Frandene, on a project that would give his firm, Denver-based Independent Architecture, a chance to explore formal innovations in residential design. Completed in 2019, the resulting Motherhouse, an honorable mention in ARCHITECT’s 2018 P/A Awards, does just that, challenging the bounds of conventional, suburban architecture in the U.S.

Located in Denver’s Sunnyside neighborhood, Motherhouse had two main sources of inspiration: Andersen’s fascination with architectural repetition and variation, and the German architect O.M. Ungers’ House Without Qualities, built in Cologne. “That house acquired a lot of character through the excessive repetition of identical elements,” Andersen says, including a series of stacked double doors. Inspired to design an “American, suburban version of the Ungers house,” Independent Architecture studied the existing architecture in Sunnyside, finding a number of “quirky houses” with truncated roofs and unexpected gables. “It seemed like there might be a way to do something where repetition of a single element [was] combined with an idiosyncrasy that was carried in a formal way through the entire project,” Andersen says.

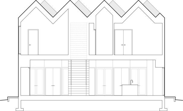
The resulting two-story, 3,100-square-foot house is a collection of conventional parts in excess, with 24 exterior doors and a shingled roof with multiple gables. The project’s yellow-and-white-striped envelope, composed of a poly-ash siding, is a pattern of repeating blocks featuring identical double doors. But there’s a twist: Compared with the one next to it, each block shifts a quarter module to the side, disrupting the overall geometric repetition. A miniature gable, tacked onto the house’s right side, adds additional whimsy, as does a 550-square-foot detached garage. The garage has a “funny effect,” Andersen says, because “the smaller building has the larger scale.”

Daylight floods the interior through Motherhouse’s many doors, warming its open-plan ground floor. Some of the 59 interior doors lead to internal storage rooms—a pragmatic addition, because the water table at the site was too high for a basement. A monolithic staircase bifurcates the ground floor and rises to the second floor, where four bedrooms each have unique, vaulted ceilings.

Motherhouse sold this past summer, achieving Independent Architect’s aim: to design a house that was architecturally ambitious, but also livable. “I hoped that, even if people weren’t interested in any of the intellectual architecture issues, that they would like it as a house,” Andersen says. “You can do interesting work without getting crazy technology or materials. You can use stuff that we use all the time.”

Project Credits
Project: Motherhouse, Denver
Design Architect: Independent Architecture, Denver. Paul Andersen, AIA (director), Drew Stanley (project designer)
Structural Engineer: Rebecca Faverty, KL&A Engineers and Builder
Civil Engineer: Dave Beasley, American Geotechnical
General Contractor: Joe Dooling, Dooling Design Build
Size: 3,100 square feet (house), 550 square feet (garage
Cost: $720,000

2018 P/A Awards
Honorable Mention

by Ian Volner

“It is playing with the very conventional American idea of home, with the porch and garage in a suburban setting. It’s a very American house.” —juror Florian Idenburg, Intl. Assoc. AIA

From Denver’s Independent Architecture comes the deceptively simple Motherhouse: Named for its intended occupant, firm director Paul Andersen, AIA’s mother, the project takes its place in a long line of architects’ early commissions for close family (such as those from Robert Venturi, FAIA, Richard Meier, FAIA, and the late Charles Gwathmey, to name but a few). And, like those precedents, Motherhouse takes the sort of liberties that a less trusting client would rarely afford a young designer. The parti begins with a single townhouse-like module, composed of double doors, an upper-story window, and a gable, repeated four times across both the front and rear elevations. But the simplicity ends there, as the designer skews the alignment of each bay such that no two are directly in line with one another across the length of the space.

As a result, what one finds in the ground-floor interior is a vast, unpartitioned room—a combined kitchen, living, and dining area—surrounded by a regular but unevenly spaced perimeter of doors to the outside, which are separated from one another by a thickened wall depth containing storage space. Upstairs, the four bedrooms are likewise just slightly off-kilter, their respective plans intersecting with the roof gables to make each room’s vaulted ceiling a little different from the next—varying from one gable, to one and a half gables, to two full gables in the master suite.

The house promises to be something like a highly livable fun house, a swarm of familiar domestic elements repeated en masse to playfully disorienting effect. At the same time, thanks to the domestic symbolism of the forms and the almost childlike manner of their repetition, the elements conjure an appropriately familiar—if not familial—atmosphere, hearkening back to the innocence and whimsy that filled the architect’s early years under the watchful eye of Motherhouse’s namesake.

Project Credits
Project: Motherhouse, Denver
Client: Fradene M. Andersen
Architect: Independent Architecture, Denver . Paul Andersen, AIA (director); Drew Stanley (architectural designer)
Structural Engineer: KL&A
Geotechnical Engineer: American Geotechnical
Contractor: Dooling Design-Build
Size: 3,042 square feet, plus a 550-square-foot detached garage
Cost: $245,000 (land), $561,000 (construction hard costs), $115,000 (soft costs)

Read about the other winners of the 65th Annual Progressive Architecture Awards.

FROM THE ARCHITECTS:

This house is for my mother. It is made up of repetitive bays with identical doors and gables. The bays are shifted a quarter module from top to bottom, front to back, and side to side, which creates a number of alignments and misalignments at the interior. No two sets of doors line up on either level of the house and the upstairs hallway jogs around the stair, but the doors at the bottom and top of the stair are aligned. The main level is a single open room surrounded by 28 sets of double doors, which lead outside and to storage areas contained within thick perimeter walls. Rooms on the upper level have vaulted ceilings within 1, 1 1/2, or 2 roof gables. The project is made of common parts—its character comes from accummulating them in excessive quantities or arranging them unconventionally. The roof has too many gables. The interior is all doors. The siding is aligned with the pitched roof rather than the walls and striped in alternating shades of a coral pink-orange. The house is currently under construction in Denver’s Sunnyside neighborhood.

Upcoming Events

  • Modernize Your Model Homes with Music

    Live Webinar

    Register for Free
  • Happier Homebuyers, Higher Profits: Specifying Fireplaces for Today’s Homes

    Webinar

    Register for Free
  • Sales is a Sport: These Tactics Are the Winning Play

    Webinar

    Register for Free
All Events