Mr Robinson

Project Details

Project Name
Mr Robinson
Location
San DiegoCA
Project Types
Multifamily
Project Scope
New Construction
Shared By
katie_gerfen
Project Status
Built
Year Completed
2015

Project Description

2017 Residential Architect Design Awards

Multifamily Housing | Citation

Mr. Robinson is a refined essay in mixed-use development, located at a bend in San Diego’s Park Boulevard. Designed by locally based Jonathan Segal, FAIA, the exposed cast-in-place concrete building’s mass both fills the site to the property lines and caught the eyes of the jury. “I like the trays and the overall frame. It’s very nice,” R. Michael Graham said. The architects carved five courtyards out of the conceptual building block to give all 36 units exterior exposure on three sides, and cantilevered balconies extend each living area. The three sides of glass in every unit create permeable enclosures that facilitate views, natural daylighting, and cross ventilation.

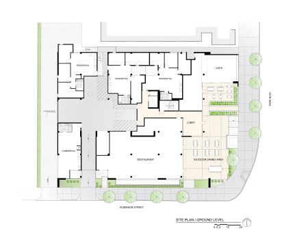
The seven-story-tall structure has a mix of office suites, market-rate apartments, and affordable units, as well as a restaurant and café at ground level, each of which has outdoor seating that combine to provide a lively streetscape and resident amenities. And while the building’s mixed-use program caters to a wide variety of the socio-economic strata, the architectural presentation of each space is egalitarian. The overarching outline of the property is dramatically displayed at the structure’s corner, where a 70-foot-tall concrete column marks the outer limits of the complex.

Mr. Robinson takes advantage of San Diego’s temperate climate to help drive its passive design strategies, including natural light and ventilation in common areas. “Overall, it looks like a very luxurious place to live,” Katherine Chia said, “and it’s very generous with outdoor space.”

Visit ARCHITECT to see the rest of the winners of the 2017 Residential Architect Design Awards.

Mr. Robinson is a 36-unit, mixed-use project in the neighborhood of Hillcrest that proposes a forward thinking environment where living and working accommodations are fused into a single community. The modern, clean form of the 7-story structure defines the corner of Park Blvd and Robinson, while creating a unique identity within the surrounding neighborhood. Starting with a pure cube as the basis of form; the volume of Mr. Robinson was sculpted and carved to bring natural light and ventilation to all living units and common areas, enhancing the connection between occupants and the world outside. The world outside is invited into the form of Mr. Robinson on the corner of the ground level. An outdoor plaza serves as a community dining space at the two restaurants. Mr Robinson brings much needed density into Hillcrest, while strengthening the community that surrounds it.

Upcoming Events

  • Build-to-Rent Conference

    JW Marriott Phoenix Desert Ridge

    Register Now
  • Builder 100

    Dana Point, CA

    Register Now
  • Protecto Wall VP Standard Installation Video

    Webinar

    Register for Free
All Events