Mr. Robinson

Project Details

Project Name
Mr. Robinson
Project Types
Multifamily
Shared By
LeahD
Project Status
Built

Project Description

Text by Nate Berg

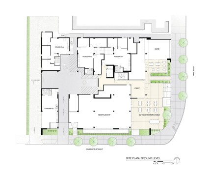
In San Diego, local architect/developer Jonathan Segal, FAIA, has designed a new kind of mixed-use building. Unlike the typically blocky and monolithic complexes that are popping up in urban areas across the country, Segal’s is an airy armature of stacked units separated from each other by open courtyards. The building is like the tines of a fork, each poking out into their own uncluttered space, yet still interconnected at their base.

The seven-story building has six such tines that jut out from a central trunk and hold a combination of affordable and market-rate housing, 36 units in total, as well as office suites. The units on the upper floors feature floor-to-ceiling windows that open out onto private cantilevered decks. The ground floor includes three residential units, a commercial space, a cafe, a restaurant, and a large outdoor dining area.

To highlight its openness, the building is accented with thin pillars of concrete that rise up at its corners and outline its roof like a stick-house frame. Within the frame, nearly every space looks out onto a courtyard. And though they’re all connected in this 60,000-square-foot complex, each unit feels as if it stands alone.

“A beautiful use of concrete. It creates an indoor/outdoor expression in a tight and dense housing habitat, which I find very relevant.”
— Juror Steven Ehrlich

Architect/Builder: Jonathan Segal, FAIA
Size: 36 residential units, ranging from 900 square feet to 1,326 square feet; 2 commercial units
Cost: $150 per square foot

Upcoming Events

  • Protecto Wall VP Standard Installation Video

    Webinar

    Register for Free
  • How Right-Sized Plumbing Saves Money, Saves Water, and Protects Wellness

    Webinar

    Register for Free
  • Building Careers from the Ground Up: The IUPAT Floor Covering Apprenticeship and Training Program

    Webinar

    Register for Free
All Events