New Beginnings

Project Details

Project Name
New Beginnings
Project Types
Single Family
Project Status
Built
Year Completed
2016
Size
264 ft²

Project Description

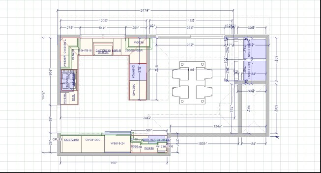
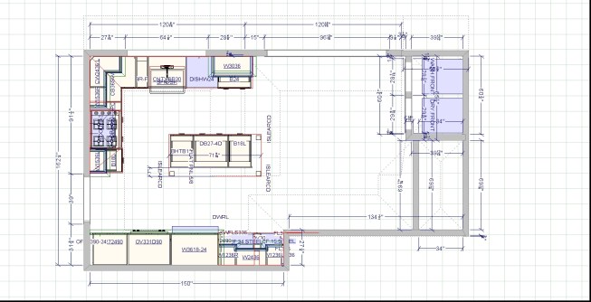
This homeowner was determined to start with a clean slate, in a brand new neighborhood and with a house she was looking to transform into a home. This was a new beginning for a recently divorced mother of two and she was hopeful that this kitchen renovation was going to help her children with the transitional period after being uprooted from their everyday life. They were coming from a more extravagant upbringing and this neighborhood was a place that both her and her children were very fond of. The homeowner wanted an open floor plan that would be filled with light. The kitchen needed to have an island that did not impede traffic like the current peninsula did, while still having casual seating in the space. They needed as much storage as possible as well as a concealed laundry area. There was an awkward hallway that enclosed the laundry machines and the egress to the rear of the home. With a definite high end style the homeowner wanted a look of clean elegance with a bit of sparkle thrown in. The awkward rear entrance and hallway with the laundry area needed to be moved in order to gain the open concept that the homeowner requested. They had to knock down the wall, reconfigure the laundry area and relocate the 30” exterior door while bringing in more light. It became a game of inches to see what size door might be able to fit in the new spot. Filled with natural light from the now greater opening to the backyard, the casual dining area seems spacious yet steps away is the laundry center complete with stackable units and storage. The other side of this now larger kitchen is full of amenities well suited for the family. The new refrigerator is not bothered with the everyday routine of casual drinks as the two drawer beverage refrigerator is well placed next to the wine refrigerator and is concealed with integrated panels. On the other side of the refrigerator is a combo unit of an oven and microwave making for a concise work triangle with the gas cooktop positioned just past the opening to the formal dining room. A few feet away and around the corner of the quartz counter top is the farm sink and additional base cabinetry. The available storage space is almost overwhelming in a white painted finish with shaker style doors. The lentils over the doorways in clean white mimic the detail of the crown molding above the cabinets. The task lighting LED high hats are functional, while the stainless steel globe pendants and the matching chandelier help soften the abundance of white and compliment the number of stainless steel appliances. Ultimately, the interior of any home is a physical representation of the homeowner’s personality and this renovation completely rejuvenated the character of this home.

Upcoming Events

  • Protecto Wall VP Standard Installation Video

    Webinar

    Register for Free
  • How Right-Sized Plumbing Saves Money, Saves Water, and Protects Wellness

    Webinar

    Register for Free
  • Building Careers from the Ground Up: The IUPAT Floor Covering Apprenticeship and Training Program

    Webinar

    Register for Free
All Events