North Fork Bay House

Project Details

Project Name
North Fork Bay House
Project Types
Single Family
Project Status
Built
Size
1,650 ft²
Team
Builder: Teresi Construction, Builder

Project Description

2018 Builder’s Choice & Custom Home Design Awards
Modular/Prefab: Merit

Along the southern shore of north Fork, Long Island, a Brooklyn, N.Y.–based family sought a weekend retreat that could provide respite from city life.

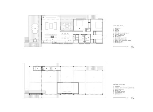
Working within a tight budget and even tighter footprint, New York firm Resolution: 4 Architecture designed a compact prefab beachfront house with an efficient layout centralized around a courtyard that maintains multiple connections to the outdoors.

The design directives were clear: The house needed to be flexible to accommodate the varying generations it would host during family weekends, require minimal and economical maintenance, and uphold a modern beach bungalow aesthetic that suits the family’s tastes. Given its proximity to a potential flood zone, it also needed to be durable and robust, in order to grant peace of mind to the family’s Florida-based grandparents who would make the home their seasonal residence.

In response to the client’s concerns about potential flooding, the architects lifted the house, setting a series of prefabricated modules atop a raised, site-built steel frame. The strategy affords expansive views of the landscape from its primary living level, while also creating shaded and sheltered outdoor spaces for parking, lounging, and recreational activities—including the grandfather’s woodworking project of building a small wooden sailboat.

Upstairs, the architects designed the plan with communal spaces that keep the adults and children connected to one another while ensuring individual privacy. The chosen
materials evoke a distinctly beachside vibe, and product selections, such as large-format tiles and stainless steel appliances, make for easy upkeep. Kynar-coated corrugated aluminum siding withstands the corrosive salt air while providing tone and texture, and full-height sliding glass doors open to a deck and path to the Great Peconic Bay. —L.D.

“This shows the evolution of prefab over the last decade. It steps in the right direction.” — Juror Donald Lococo

Upcoming Events

  • Protecto Wall VP Standard Installation Video

    Webinar

    Register for Free
  • How Right-Sized Plumbing Saves Money, Saves Water, and Protects Wellness

    Webinar

    Register for Free
  • Building Careers from the Ground Up: The IUPAT Floor Covering Apprenticeship and Training Program

    Webinar

    Register for Free
All Events