Oak Park Housing

Project Details

Project Name
Oak Park Housing
Location
SacramentoCA
Project Types
Multifamily
Project Scope
New Construction
Shared By
Madeleine D’Angelo
Project Status
Built
Year Completed
2017

Project Description

A design by the Milwaukee-based partnership Johnsen Schmaling Architects is easy to spot: a crisp essay in a particular building type, elegantly deployed with a twist or two for interest. Now ranging far from their Midwestern base, principals Brian Johnsen, AIA, and Sebastian Schmaling, AIA, recently finished a set of six single-family residences in Sacramento, Calif., featuring multicolored façades that nod to the neighborhood context.

Located just over 2 miles southeast of the California State Capitol building, Oak Park Housing takes its name from the gentrifying neighborhood in which it sits. Broadway, a main thoroughfare just steps west of the site, is largely a commercial strip, so the site fits within a transitional zone between larger commercial structures and more fine-scaled residential development. “It made sense to restore the grain and rhythm of the neighborhood,” Schmaling says of the infill project’s massing.

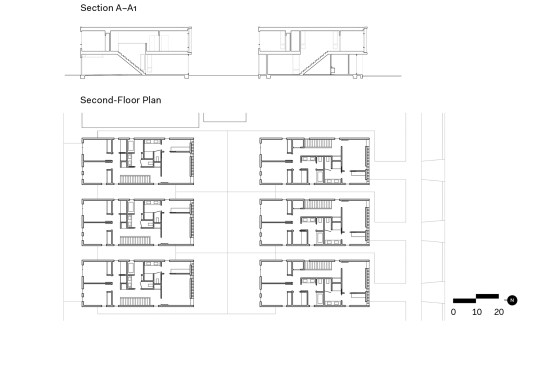
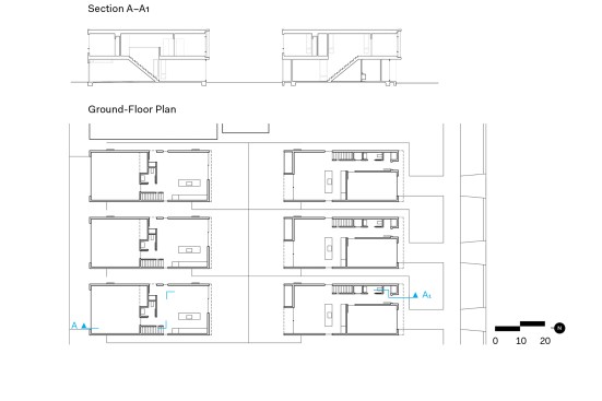
Indie Capital, a local developer, bought the 80-foot by 140-foot multifamily-zoned lot as one parcel, and the architects laid out the six market-rate units as side-by-side houses, with three facing the street and three facing an alley.

At 20 feet by 47 feet each, the two-story wood-framed houses look identical from the street, but there’s a bit of variation within. In the southern units, entry, garage, and a second-story master bedroom face the street. A living/dining/kitchen area opens to a small yard, with two bedrooms overlooking the yard from above. The north units reverse the ground-floor plan—with entry and garage facing the alley on the site’s north side, and the combined living/dining/kitchen space facing south toward a yard—but the second-story master bedroom on these units is on the south side. This inversion was based on two design intentions: “We didn’t want the master bedroom facing the alley,” Schmaling says. The designers also wanted the colorful framed opening that denotes the larger bedroom to face the street on all of the units, so that the complex would be seen as a composition of six repeating façades to passersby.

The quirky, idiosyncratic folded-aluminum fins that define the second-floor façades reflect the neighborhood, where stores stocked with colorful goods and covered in artful graffiti are the norm. “We must have looked at a hundred color schemes,” Schmaling says. The architects settled on a relatively simple palette of five hues, plus off-white. They drew inspiration from the adjacent Volkswagen repair shop, which is often filled with classic VW Beetles. “Many ’70s cars fall into a range—blue, but not quite; red, but not quite; a very particular orange,” Schmaling says. “It’s just a bit off—and our colors are similar.”

The simple material palette reflects the limited budget: The exterior uses a three-coat stucco system for the dark gray volumes, a horizontally striated fiber cement board for the light-gray volumes, and colorful lacquered aluminum fins that define the upper level of the south-facing façades. The interiors are drywall, and most of the kitchen and bathroom built-ins are from IKEA.

Construction finished in December, and all six have been sold already. Sacramento’s reputation as a design center pales in comparison to other California locales like Los Angeles and San Francisco, but Johnsen and Schmaling have discovered an affinity with the city. “It has the scale and vibe of Milwaukee,” Schmaling says, “and it’s being rediscovered.”


Project Credits
Project: Oak Park Housing, Sacramento, Calif.
Client/Owner: Indie Capital
Architect/Interior Designer/Landscape Architect/Lighting Designer: Johnsen Schmaling Architects, Milwaukee . Brian Johnsen, AIA, Sebastian Schmaling, AIA (principals-in-charge); Matt Wendorf, Ben Penlesky, P.J. Murrill, Angelina Torbica, Andrew Cesarz (project team)
Structural Engineer: Core 4 Engineering
Civil Engineer: JTS Engineering Consultants
General Contractor: Indie Capital Constructors
Fire Protection: Ultimate Fire Systems
Size: 11,679 square feet (total), 1,913 square feet (street units), 1,980 (alley units)
Cost: $1.7 million

This article appeared in ARCHITECT’s March 2018 issue.

This project won an award from the 2019 AIA Housing Awards

FROM THE AIA:

Oak Park Housing is a compact infill development on a long-vacant lot in Sacramento’s Oak Park district. The project, a dense cluster of six prototypical single-family homes, is a harbinger of Oak Park’s urban revitalization, its architecture cheerfully embracing the creative and buoyant energy that has propelled the ongoing renaissance of this vibrant and culturally diverse community. Carefully proportioned to echo the massing and scale of the area’s existing building stock, the houses are simple, two-story volumes, their appearance crisp but deliberately playful in a nod to the progressive spirit permeating the neighborhood. The buildings’ south facades transform into an articulated fields of vertical metal louvers that act as both sun screen and compositional device. The metered spacing of the louvers sets up a dynamic cadence, their prismatic colors complementing the homes’ otherwise neutral, muted tones and cheerfully reverberating the vivid, kaleidoscopic hues of the buildings and murals nearby.

Project Credits:
Project: Oak Park Housing
Architect: Johnsen Schmaling Architects
Structural Engineer: Core 4 Engineering
General Contractor: Indie Builds

Upcoming Events

  • Protecto Wall VP Standard Installation Video

    Webinar

    Register for Free
  • How Right-Sized Plumbing Saves Money, Saves Water, and Protects Wellness

    Webinar

    Register for Free
  • Building Careers from the Ground Up: The IUPAT Floor Covering Apprenticeship and Training Program

    Webinar

    Register for Free
All Events