Old Orchard

Project Details

Project Name
Old Orchard
Location
East HamptonNY
Project Types
Project Status
Built
Year Completed
2015
Size
11,500 ft²

Project Description

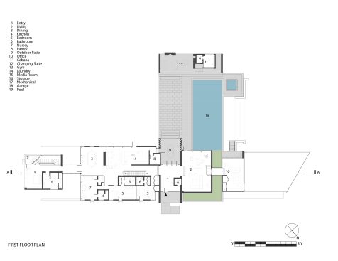
Before changing a thing, the new owners of this modern spec house spent a year in the space in an effort to better understand their current and future needs as their family grows and they transition into spending more time in this second home. The existing original structure was configured as a linear, single story, glass and metal box with grade carved down to basement level at both ends. This provided below-grade access to a garage at one end and a small courtyard for two lower level bedrooms at the other. Although the owners liked these features, they sought to personalize the house and to bring warmth and life to a bland interior. Our renovations and additions create architectural moments that clearly read as their own family. Simple wood and glass elements offers a recognizable contrast to the aluminum skin of the existing building and enrich the material palette. An afromosia tube bisects the main structure, creating an entry plinth a few steps above the existing floor. The tube also sets up a visual alignment with a new afromosia pool house across the property. A new afromosia study was added to one end of the existing structure, connected to the main house by enclosed glass bridges. The office spans and screens the sunken garage drive, providing a more welcoming facade at the approach. At the opposite end, the two-story master suite consists of an afromosia and glass bedroom and bath at grade level atop a stuccoed lower level plinth that contains a substantial dressing room. This looks out to lush gardens contained within the sunken courtyard. In concert, the additions tell a story about new joining old to craft a family home that will be the backdrop for many years of memories.

Upcoming Events

  • Modernize Your Model Homes with Music

    Live Webinar

    Register for Free
  • Happier Homebuyers, Higher Profits: Specifying Fireplaces for Today’s Homes

    Webinar

    Register for Free
  • Sales is a Sport: These Tactics Are the Winning Play

    Webinar

    Register for Free
All Events