Open and Airy Kitchen Remodel

Project Details

Project Name
Open and Airy Kitchen Remodel
Location
BradentonFlorida
Project Types
Single Family
Project Status
Built
Year Completed
2017
Size
500 ft²

Project Description

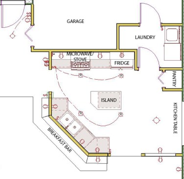
Originally built in 2002, this villa with proximity to the beach had a kitchen that was outdated. Although the cabinets, appliances, and countertops were still functional, they wanted an updated look that represented a coastal feel. Their kitchen was used for both cooking and entertaining. They wanted an open floor plan with a large island that would be the visual focal point of the kitchen. The homeowners were looking for design and material selections that would be unique, yet still include neutral undertones. From a design perspective this wasn’t a simple project and we encountered several challenges: 1. Aesthetically, the existing kitchen was dated. The homeowners wanted a more customized look. Once the layout was determined, we recommended materials, colors and finishes that would match the beach style they were looking for. 2. The original kitchen footprint was predetermined by existing walls, which was not ideal for entertaining. 3. The homeowners wanted a large island that could serve as the focal point of the kitchen and where guests could gather. The existing island was very small with no seating room. Since one of the primary design goals was to achieve an open concept kitchen, we started with opening the space, so it could be more conducive for entertaining guests. We removed the existing walls that separated the kitchen from the living room, as well as the breakfast bar and arches. This gave us a larger footprint where we could present several design alternatives. The homeowners also wanted to make sure we maximized the natural light from the surrounding windows. With the homeowners wanting a large island that would serve as the focal point of the room, it quickly became the center of our design. We kept the refrigerator, cooktop, and oven on the same wall, but moved the oven two feet for better access. The dishwasher was also moved to the island and we added a double sink making it convenient for cooking. To frame the new kitchen space (and window), we added cabinetry and a bench seat to the exterior wall, along with a wine cooler and hideaway coffee bar. The client wanted to stay with neutral color tones but still create visual interest. To do this, two cabinet door styles were used throughout the kitchen. We installed a recessed full overlay door face on the backside of the island and a square inset door on the front of the island. For the backsplash, we laid a linear glass mosaic, which added interest and height to the room. In completing the remodel, quartz countertops and vinyl plank flooring were installed, which brought the entire kitchen and living area together. In the end, the new kitchen’s open floor plan flows seamlessly with the adjoining areas of the home. There is plenty of room for preparing meals, as well as entertaining guests. The cabinet variety, flooring finish, and light fixtures all blend with the existing home. Unlike the previous kitchen, the new kitchen looks and feels like a Florida dream kitchen!

Upcoming Events

  • Build-to-Rent Conference

    JW Marriott Phoenix Desert Ridge

    Register Now
  • Builder 100

    Dana Point, CA

    Register Now
  • Protecto Wall VP Standard Installation Video

    Webinar

    Register for Free
All Events