Paradise Cove

Project Details

Project Name
Paradise Cove
Location
MalibuCA
Architect
studio bracket
Project Types
Single Family
Project Status
On the Boards/In Progress
Year Completed
2018
Size
8,000 ft²

Project Description

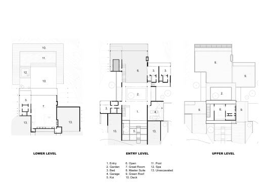
This site offers a unique challenge in that it slopes away towards the beach to the south and down into canyons to the east and west. It is bounded by Pacific Coast Highway to the north and as such required public views from PCH to the Ocean were to be protected. In addition to the public view concerns, the protected private views of our uphill neighbors also came into play. In order to mitigate impact on public and private views, we pushed the house down into the site and kept the main massing of the project to the center of the site. By lowering the house we were able to limit the over all height to less than 18’ above grade. This approach actually created twice as much public view corridor than was required and kept the house below the blue water ocean views of the neighbors. The house boasts green roofs, interior open air sculpture garden, grey water irrigation, rainwater retention, solar, radiant heat floors, home battery system, passive heating and cooling strategies and locally sourced materials and appliances.

Upcoming Events

  • Happier Homebuyers, Higher Profits: Specifying Fireplaces for Today’s Homes

    Webinar

    Register for Free
  • Sales is a Sport: These Tactics Are the Winning Play

    Webinar

    Register for Free
  • Dispelling Myths and Maximizing Value: Unlock the Potential of Open Web Floor Trusses

    Webinar

    Register for Free
All Events