Pavilion House

Project Details

Project Name
Pavilion House
Location
PortlandOR
Project Types
Single Family
Project Status
Built
Year Completed
2014
Size
2,300 ft²

Project Description

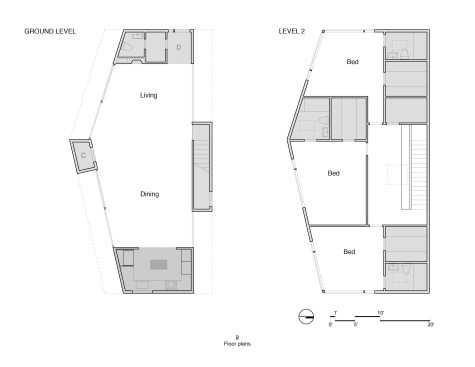
PAVILION HOUSE The clients wanted a glass house. The difficulty was that they wanted this house placed on a visually exposed 50’ x 100’ city lot that they owned in NE Portland. This posed the challenge of designing a glass house with privacy. Our solution was to design a pavilion-like structure in which the body of the house is supported by 4 ten-foot tall “legs.” The legs are placed strategically to block unwanted views and provide privacy. These 4 rectangular legs (housing stairs, kitchen, bathroom and storage) support the second story. Between these legs, the open floor plan expands to outdoor living through floor to ceiling glass and doors. The polished concrete floor is cast on grade, creating a seamless transition to the surrounding yard. Stepping into the north leg the mood changes as the stairway leads up to the bedroom level. Upstairs the spaces and rooms are more cellular and intimate. This part of the house is designed for flexible living arrangements (family or house sharing) with 3 compact, self-contained bedroom suites that wrap around a central landing and common study space. The exterior is clad in standing seam white metal panels of varying width. The panels wrap the pavilion legs giving the impression that the house has been reductively sculpted from a single mass.

Upcoming Events

  • Protecto Wall VP Standard Installation Video

    Webinar

    Register for Free
  • How Right-Sized Plumbing Saves Money, Saves Water, and Protects Wellness

    Webinar

    Register for Free
  • Building Careers from the Ground Up: The IUPAT Floor Covering Apprenticeship and Training Program

    Webinar

    Register for Free
All Events