Peninsula

Project Details

Project Name
Peninsula
Architect
Michels Homes
Project Types
Custom
Project Status
Built
Year Completed
2016
Size
200 ft²

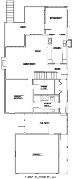
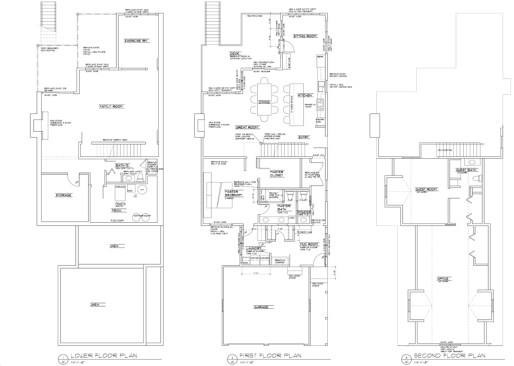
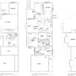
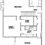
Project Description

This 1980’s-built, lakeside home was dated, dark, and lacked inspiration throughout. An undercapitalized area of the home that needed significant work was the kitchen. The kitchen offered little to no storage or counter space and was boxed in from the incredible views that Medicine Lake had to offer. One of those walls had a pass-through/serving window, which made the space feel very much dated. Though the area had a long list of issues, it had great potential. Our goal for this project was to create a modern, stylish, and cozy area for the owners that could easily accommodate their love of entertaining groups both large and small. To accomplish those goals, we removed the walls surrounding the existing kitchen, fully gutted the space adjusting framing/loads, and started from scratch. Functionality, flow, and natural light improved instantly once the walls between the kitchen and living area were removed. By removing those walls, the main level was converted into an open layout. This was a challenging aspect of the project, as it required extensive planning to ensure we could safely remove the walls without disturbing the rest of the structure. We wanted to fit a number of features into the kitchen and not have the area feel cramped. This was a challenge as we were working within a small footprint and didn’t want to consume the homeowner’s precious space. The appliances were installed on the exterior wall, which allowed for the installation of a spacious island, which provides the owner’s with ample space for meal prep and additional dining space. Tucked within the island are a number of creative storage solutions, such as a rollout cabinet for garbage and recycling bins, deep cabinets with rollouts that allow for storage of large pots and pans, and a microwave drawer. The kitchen also features white, custom cabinetry, cool toned granite countertops, high-end, stainless steel appliances, dark hardwood flooring, and a unique tile backsplash that extends from the countertop to the ceiling. The space opens up into the four-season porch and the dining and living areas, which we updated as well. This allows the chef of the home to meal prep and still converse with the group while entertaining. The once dark and dated kitchen is now modern, bright, and elegant. Our team successfully created a cozy space for the owner’s that takes advantage of the stunning lake views, is functional for all their needs, and flows with the rest of the open-concept main level floor plan.

Upcoming Events

  • Happier Homebuyers, Higher Profits: Specifying Fireplaces for Today’s Homes

    Webinar

    Register for Free
  • Sales is a Sport: These Tactics Are the Winning Play

    Webinar

    Register for Free
  • Dispelling Myths and Maximizing Value: Unlock the Potential of Open Web Floor Trusses

    Webinar

    Register for Free
All Events