Red House

Project Details

Project Name
Red House
Location
PortlandOR
Project Types
Single Family
Project Status
Built
Year Completed
2015
Size
2,200 ft²

Project Description

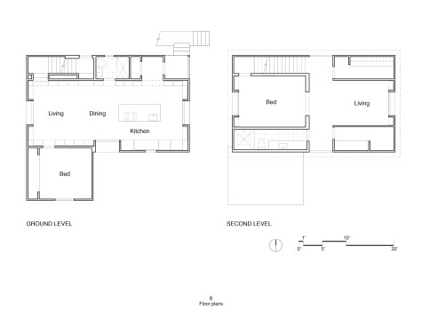
RED HOUSE The challenge of this project was to breath new life into an existing 1910 farmhouse style building located in an urban SE Portland neighborhood. A balance between old and new was desired: memory of the original balanced with freshness and vitality of the new. The solution was to maintain the original form, but abstract it into a modern sculpture. Furthering the experience of the building as a singular form, the traditional interior was re-imagined as one main room per floor with support spaces surrounding these main rooms, thereby creating a “thickened edge.” New windows were cut into this thickened edge with the glass set to the inside. From the outside, the two-foot deep windowsills give a carved out and sculptural appearance. The exterior is painted a monochromatic red further giving the house an abstract quality and elevating economical cladding materials, such as Hardie Plank, to a noble effect. Portland is in the midst of a heated controversy over demolition of existing housing stock for new development. The Red House serves as an example of a third option that satisfies both the need to bring progressive architecture that meets contemporary demands as well as a preservation of historic forms and robust building stock.

Upcoming Events

  • Protecto Wall VP Standard Installation Video

    Webinar

    Register for Free
  • How Right-Sized Plumbing Saves Money, Saves Water, and Protects Wellness

    Webinar

    Register for Free
  • Building Careers from the Ground Up: The IUPAT Floor Covering Apprenticeship and Training Program

    Webinar

    Register for Free
All Events