Renovation on Cox’s Row

Project Details

Project Name
Renovation on Cox’s Row
Location
WashingtonDC
Project Types
Project Status
Built
Year Completed
2018
Size
7,290 ft²

Project Description

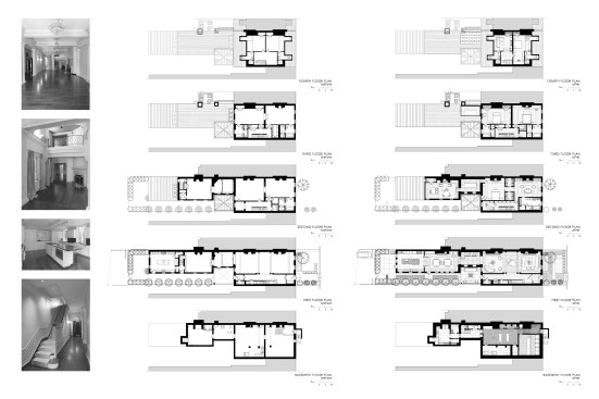
This project is designed to respect the historical integrity of the existing architecture, while updating the house to accommodate the new owner's spatial requirements and extensive art collection. The house is composed of three volumes; a four story main block in front, a two story, double height central block and a rear volume that is partially one story and two stories. The existing room sizes were generous, but the layout was compartmentalized. The end third of the house was physically and visually disconnected from the front of the house. Space on the second floor of the rear block was only accessible from a back stair and was totally isolated from the main block. All of the rooms in the rear block were dark, with no relationship to the garden. Along the lengthy one hundred and twenty foot first floor axis, spaces are opened up and now connect physically and visually, providing impactful views through the house. A new stair and bridge is added to the central double height volume, fostering connectivity between the rear block and the main block on the second floor. A glass volume is added to the roof with the goal of painting with light the central volume and adjacent dining space.

Upcoming Events

  • Protecto Wall VP Standard Installation Video

    Webinar

    Register for Free
  • How Right-Sized Plumbing Saves Money, Saves Water, and Protects Wellness

    Webinar

    Register for Free
  • Building Careers from the Ground Up: The IUPAT Floor Covering Apprenticeship and Training Program

    Webinar

    Register for Free
All Events