Riverview House Kitchen

Project Details

Project Name
Riverview House Kitchen
Location
ChicagoIll.
Project Types
Single Family
Project Status
Built
Size
224 ft²
Room or Space
Kitchen

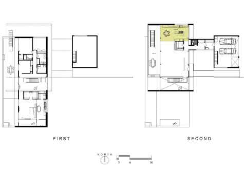
Project Description

Located in the cantilevered portion of the second floor of the
Riverview House in Wayne, Ill., this kitchen is an exercise in
streamlined restraint. It is composed of three linear elements: a single
line of wall-hung cabinets anchoring one end; an island that contains
the majority of the remaining cabinetry as well as the range; and what
the architects at Chicago-based Studio Dwell refer to as “the tube.”

This
third element is essentially a continuation of the wood-lined
passageway between the living space and the garage beyond. In the
kitchen, it takes the form of a tall cabinet that hides the pantry, wine
storage, a fireplace, and, of course, kitchen appliances. It also
serves as an earthy counterpoint to the crisp white Caesarstone quartz
countertops, which brighten the space by reflecting light that enters
through the glazed walls at either end, offering views of the nearby Fox
River. Clerestories lining the 14-foot-tall walls allow light to
further penetrate the space.

The kitchen anchors one end of an
otherwise open-plan space—separated only by the structure of the
tube—allowing the family to remain connected to one another and the
uninterrupted views of the landscape afforded by the design. — Katie Gerfen

Upcoming Events

  • Protecto Wall VP Standard Installation Video

    Webinar

    Register for Free
  • How Right-Sized Plumbing Saves Money, Saves Water, and Protects Wellness

    Webinar

    Register for Free
  • Building Careers from the Ground Up: The IUPAT Floor Covering Apprenticeship and Training Program

    Webinar

    Register for Free
All Events