Robin’s Way Master Bath

Project Details

Project Name
Robin’s Way Master Bath
Project Types
Custom
Project Scope
Renovation/Remodel
Shared By
Amy Albert
Project Status
Built
Year Completed
2012
Style
Transitional
Size
2,000 ft²
Room or Space
Bath

Project Description

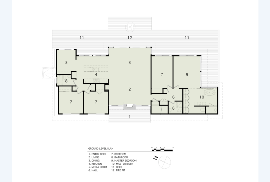
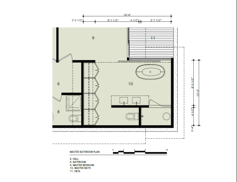
“Beautiful material selections and craftsman details,” said the judges of the Robin’s Way master bath, part of a master suite addition that’s set on the south end of an existing house. The bath was given an 2013 Watermark Award of Merit.

Exposing lighting and shielding utilities was a top priority for the bath. The solution, rope woven between the existing ceiling joists, was inspired by one of the homeowner’s prized possessions, a mid-century woven chair by Danish furniture designer Hans Wegner. The rope covering on the ceiling adds hand-hewn appeal; that same rope is used to hang the custom mirror at the vanity, and as a screen on the master bath’s sliding doors. A vanity made of salvage wood underscores the hand-crafted appeal of a bath that serves as a private haven.

Upcoming Events

  • Protecto Wall VP Standard Installation Video

    Webinar

    Register for Free
  • How Right-Sized Plumbing Saves Money, Saves Water, and Protects Wellness

    Webinar

    Register for Free
  • Building Careers from the Ground Up: The IUPAT Floor Covering Apprenticeship and Training Program

    Webinar

    Register for Free
All Events