Sagaponack

Project Details

Project Name
Sagaponack
Project Types
Project Scope
New Construction
Shared By
mkrochmal
Project Status
Built
Year Completed
2013
Size
8,965 ft²

Project Description

Custom / More than 3,000 Square Feet / Merit

Presented with a dense program and pristine setting, Paul Masi, AIA, LEED AP, practiced the art of subtraction in this house, sandwiched between a pond and the Atlantic Ocean. Sections of the long, barnlike building are pared away, establishing a clear formal plan and visual bridges from one side of the site to the other. “As the big idea trickled down, we used CNC and waterjet fabrication to further simplify the design,” Masi says. Corian in the kitchen and baths was CNC-milled, and a Cor-Ten retaining wall at the entrance cantilevers upward to become a waterjet-cut handrail.

The jury was impressed with the plan clarity, the geothermal heating and cooling, and the vegetated roofs. One praised it for achieving “simplicity in a very large diagram. It could have gotten out of control, but didn’t.” —Cheryl Weber, LEED AP

FROM THE ARCHITECTS:

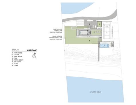
Located between the Atlantic Ocean and a freshwater pond, this residence is for an adventurous couple and their four sons. They wanted a house for their large family and numerous guests with a lawn, swimming pool, pool house, garage, and sports courts on a site with a limited building envelope due to coastal and wetland zoning. The large program, relatively small footprint, and daunting regulations dictated a building envelope densely packed with program that stood as a barrier between the ocean and the pond. Thus the design process was one of subtraction rather than addition: carving away at the solid mass of the house to reconnect site features and views and to distill the experience of the place.

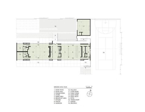
Spaces run the full width of the house with floor to ceiling sliding doors on both sides. The spaces create apertures through which views, light, and air completely penetrate the house, dissolving its mass. Passersby see directly through the house to the sky and landscape beyond. With the sliding doors open and recessed into the adjacent walls, interior spaces are transformed from formal rooms to open pavilions, merging seamlessly with the site.

The plinth of the elevated house is carved into a series of stepped planters that are further sculpted into the entry steps, mediating the different grades required by flood control regulations. Besides dictating the minimum first floor height, regulations also set the roof height. To maximize the ceiling heights within those limits, the house utilizes a steel moment frame to pare down the thicknesses of the floors and roof to the absolute minimum.

The design strategy to accommodate the extensive program is to nest spaces within one another. Operable partitions pull out from the walls of the living room, carving out a media room within the living room when privacy is desired. Conversely, with the partitions open, the media room merges with the living room for large gatherings. The thickness of the wall separating the dining room and kitchen is also cut away, utilizing its depth to accommodate a wine rack that also functions as a light fixture.

Using the design approach of sculpting away rather than building up, the house is pared down until the experience of the extraordinary site is dominant.

Upcoming Events

  • Happier Homebuyers, Higher Profits: Specifying Fireplaces for Today’s Homes

    Webinar

    Register for Free
  • Sales is a Sport: These Tactics Are the Winning Play

    Webinar

    Register for Free
  • Dispelling Myths and Maximizing Value: Unlock the Potential of Open Web Floor Trusses

    Webinar

    Register for Free
All Events