Schindler Residence

Project Details

Project Name
Schindler Residence
Project Types
Project Scope
Addition/Expansion
Shared By
Chinnu
Project Status
On the Boards/In Progress
Size
3,603 ft²
Room or Space

Project Description

2005 RADA
On The Boards / Grand

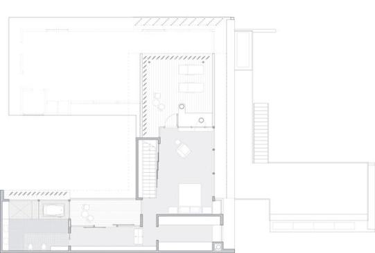
Adding onto an iconic piece of architecture can be intimidating, but the seamless extensions proposed for this 1950 house by Rudolph Schindler earned nothing but praise from the judges. They agreed that “the work added enhances the original.” The low-slung house is spread out on a double lot, a little world unto itself with a courtyard and garden, but it’s something of an oddball on the street. “The other homes are tall and compact and go right up to the property line,” says Jay Serrao, AIA. “Our challenge was to add onto the house in a respectful way, while relating it to its surroundings.”

A thin upper-level addition follows the spatial logic of the original house, flipping its L shape to accommodate a master suite and private deck. That move floats the addition’s bulk against the property line and helps to mediate the scale difference. Another L form projecting into the lower rear garden will house an office/guest room and provide a roof deck outside the living room above. The additions’ louvers reference the opaque operable louvers designed by Schindler, but they’re smaller than the originals and made of frosted glass, deftly playing old against new.

Upcoming Events

  • Protecto Wall VP Standard Installation Video

    Webinar

    Register for Free
  • How Right-Sized Plumbing Saves Money, Saves Water, and Protects Wellness

    Webinar

    Register for Free
  • Building Careers from the Ground Up: The IUPAT Floor Covering Apprenticeship and Training Program

    Webinar

    Register for Free
All Events