Scott’s Grove Affordable Housing

Project Details

Project Name
Scott’s Grove Affordable Housing
Project Scope
New Construction
Project Status
Built
Year Completed
2018
Size
7,500 ft²

Project Description

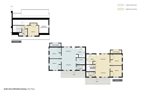
Scott's Grove housing is comprised of 9 affordable housing units with 18 bedrooms located within 4 clusters connected by a classic Vineyard boardwalk system. The housing style reflects the wood-shingled, Cape-style homes found prevalent throughout Martha's Vineyard. The scale of each complex is intentionally designed to evoke the idea of a neighborhood village comprised of modestly scaled residential homes typically found throughout the island. The design approach also focuses on the fundamental belief that housing should create healthy, pleasant, and sustainable homes for individuals and families at all levels of income. These homes afford a dignified and enriched experience for the residents while being sustainably designed, sensitive to the existing neighborhood, and environmentally sensitive impact on the island's landscape. All units have a mix of shared and private landscape areas on the site that revolve around Vineyard boardwalks. These raised walkways, not only minimizing the disruption of the existing natural landscape, serve as the connective paths from the parking areas to the duplex homes. The walkways expand and become common gathering outdoor rooms available to all. Within each duplex pair is a combination of one, two, and/or three-bedroom units, each based on a refined set of integrated space components linked together. This allows for a variation of composition that establishes individual identity for each occupant, but also repetition of construction that keeps cost down. The project has been designed to ENERGY STAR Tier 3 performance requirements.

Upcoming Events

  • Protecto Wall VP Standard Installation Video

    Webinar

    Register for Free
  • How Right-Sized Plumbing Saves Money, Saves Water, and Protects Wellness

    Webinar

    Register for Free
  • Building Careers from the Ground Up: The IUPAT Floor Covering Apprenticeship and Training Program

    Webinar

    Register for Free
All Events