Shingle-Style Beach House

Project Details

Project Name
Shingle-Style Beach House
Project Types
Shared By
Amy Albert
Project Status
Built
Year Completed
2013
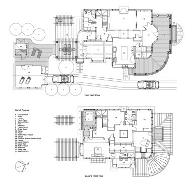
Size
4,000 ft²
Room or Space
Outdoor

Project Description

This Shingle-style home was constructed pre-Hurricane Sandy and it survived, thanks toprovisions such as hurricane ties, hold-downs, and shear wall construction. The place was built to withstand winds up to 115 mph. Even though the site is a good block or so from the ocean, grade elevation is up around 30 feet above sea level, and the house has a full basement. Wall construction is 2 x 6 with solid spray foam insulation, resulting in a good R-value.

On the site was an existing house, but renovating it was cost prohibitive. Architect Rich Bubnowski took many cues from the original and surrounding houses in the neighborhood, designing a 13-foot-deep wrap porch with 12-foot-wide entrance steps—the ideal place for the family photos that get taken during reunions at this family gathering place.

One design move that Bubnowski wasn’t allowed to make was the cladding of the house. “My choice would have been cedar,” says the architect, who admits that he raised his eyebrows when he learned he wouldn’t be using actual shingles for this Shingle-style house. The owners, however, wanted a maintenance-free exterior for this second home. Using a non-traditional material on a historic-looking house involved extra work to get the window detailing and flashing right, but result was successful. Sure enough, it’s hard to tell by looking that this house is clad in engineered composite siding.

Upcoming Events

  • Build-to-Rent Conference

    JW Marriott Phoenix Desert Ridge

    Register Now
  • Builder 100

    Dana Point, CA

    Register Now
  • Protecto Wall VP Standard Installation Video

    Webinar

    Register for Free
All Events